3,290万円
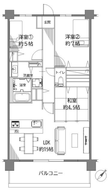
3LDK
種別 マンション
専有面積 72.32㎡(壁芯)
おすすめ
ポイント
日生中央駅徒歩5分の好立地!ペットと暮らせる3LDK♪
R7年11月完工のリノベーション物件♪新生活を美しくスタート♪
食洗機付きシステムキッチン、1418サイズの浴室など設備充実。
LDK約15帖のゆとり空間。全室クロス・フローリング張替済み。
| 築年月 | 2012年5月 |
|---|---|
| 構造 | 鉄筋コンクリート造 |
| 所在階 | 12階建ての6階 |
| 総戸数 | 210戸 |
| 向き | 南東 |
| バルコニー面積 | 12.80㎡ |
| 駐車場 | 駐車場有り 3,500円/月 |
| 施工会社 | 株式会社鴻池組大阪本店 |
| 管理会社 | 株式会社大京アステージ |
| 管理形態 | 全部委託(日勤) |
| 権利 | 所有権 |
| 借地権 | - |
| 現況 | 空室(入居歴有) |
| 引渡時期 | 相談 |
| 引渡条件 | |
| 管理費 | 7,900円/月 |
| 修繕積立金 | 16,270円/月 |
| 取引態様 | 媒介 |
| 管理コード | AYA400787 |
設備・特記
《設備》:CATV/陽当り良好/リノベーション/通風良好/フローリング張替/BSアンテナ/CSアンテナ/バリアフリー/内装リフォーム/カウンターキッチン/クローゼット/収納スペース/浴室暖房/システムキッチン/平面駐車場/ペット相談可/和室/LDK15畳以上/閑静な住宅街/緑豊かな住宅地/浄水器/全居室収納/温水洗浄便座/洗髪洗面化粧台/食器洗浄乾燥機/洗面所独立/エレベータ/宅配BOX/東南向き/TVモニター付きインターホン
《物件の特徴》:-
備考
《その他》:施工会社(株式会社鴻池組大阪本店) / 管理会社(株式会社大京アステージ) / 用途地域:第二種住居地域 / 国土法届出:不要
※詳細については、Webサイトにてご確認ください。現状と異なる場合は、現状を優先させていただきます。
※取引態様の欄に「媒介」と表示された物件は「仲介物件」です。ご成約の際には仲介手数料を申し受けます。
情報更新日|2026年1月10日
次回更新予定|2026年1月25日