4,990万円
4LDK
種別 戸建て
建物面積 98.12㎡(壁芯)
おすすめ
ポイント
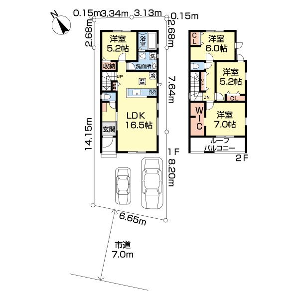
敷地115㎡以上/駐車場並列2台可能/前面7m道路のゆとりあり
家族の寛ぎのプライベート時間を過ごす、ゆとりのLDK16.5帖
収納力の高さが魅力。ウォークインクローゼット付で居室を有効利用
長期優良住宅と住宅&建設性能評価書のW取得で安心の住まいを提供
| 築年月 | 2025年12月 |
|---|---|
| 構造 | 木造 |
| 階数 | 2階建て |
| 土地面積 | 115.28㎡ (34.87坪) |
| 駐車スペース | 駐車場あり( 2台) |
| 都市計画 | 市街化区域 |
| 用途地域 | 準工業地域 |
| 建蔽率/容積率 | 60% / 200% |
| 地目 | 宅地 |
| 区画整理 | - |
| 接道 | 南西側7.0m公道に6.6m接道 |
| 私道 | なし |
| 権利 | 所有権 |
| 借地権 | - |
| 現況 | 空室(入居歴無) |
| 引渡時期 | 即時 |
| 引渡条件 | |
| 取引態様 | 媒介 |
| 管理コード | ST410056 |
設備・特記
《設備》:BELS/省エネ基準適合/上水道/前道6m以上/フラット35S適合・利用可/下水道/複層ガラス/カウンターキッチン/クローゼット/システムキッチン/追い焚き風呂/3口コンロ/浴室乾燥機/バルコニー/24時間換気システム/ルーフバルコニー/ビルトインガレージ/都市ガス/長期優良住宅/整形地/性能評価書取得/設計住宅性能評価書/LDK15畳以上/2面採光/全居室収納/浄水器/トイレ2ヶ所/温水洗浄便座/床下収納/ウォークインクローゼット/TVモニター付きインターホン
《物件の特徴》:-
備考
《その他制限》:22条区域
《その他》:備考:敷地115㎡以上/駐車場並列2台可能/前面7m道路のゆとりあり/家族の寛ぎのプライベート時間を過ごす、ゆとりのLDK16.5帖/収納力の高さが魅力。ウォークインクローゼット付で居室を有効利用/長期優良住宅と住宅&建設性能評価書のW取得で安心の住まいを提供 / 国土法届出:不要
《建築確認番号》:第25UDI1W建03264号
※詳細については、Webサイトにてご確認ください。現状と異なる場合は、現状を優先させていただきます。
※取引態様の欄に「媒介」と表示された物件は「仲介物件」です。ご成約の際には仲介手数料を申し受けます。
情報更新日|2025年12月10日
次回更新予定|2025年12月24日