前へ
次へ
前へ
次へ
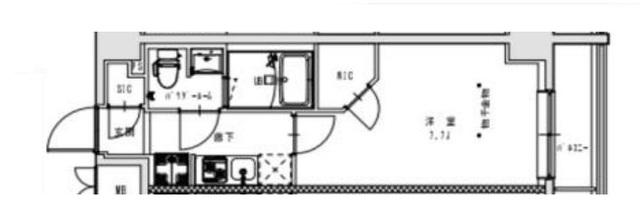
賃貸マンション

北区豊島マンション

NEW
  • 東京都北区豊島2丁目 MAP
    • 都電荒川線 「栄町駅」 徒歩13分 / 都電荒川線 「王子駅前駅」 徒歩10分 / 東京メトロ南北線 「王子駅」 徒歩10分
築年月
2022年9月
構造
鉄筋コンクリート造
階数/戸数
地上9階建て / -
管理形態
-
建物設備
オートロック/宅配BOX
管理会社
-
施工会社
-
更新日:2025年11月2日

北区豊島マンションの他の空室物件

1

周辺環境

  • まいばすけっと 王子店:576m
    まいばすけっと 王子店:576m
  • ファミリーマート北区豊島二丁目店:248m
    ファミリーマート北区豊島二丁目店:248m
  • ローソンストア100 北区豊島三丁目店:391m
    ローソンストア100 北区豊島三丁目店:391m
  • 薬 マツモトキヨシ 王子店:543m
    薬 マツモトキヨシ 王子店:543m
  • ホワイト急便 豊島3丁目店:782m
    ホワイト急便 豊島3丁目店:782m
  • みずほ銀行王子支店:829m
    みずほ銀行王子支店:829m
コンビニ
ファミリーマート北区豊島二丁目店
248m
買物
まいばすけっと 王子店
576m
ショッピング施設
-
ドラッグストア
薬 マツモトキヨシ 王子店
543m
ホームセンター
コーナンPRO 王子堀船店
718m
病院
王子生協病院
373m
役所
-
郵便局
-
図書館
-
交番
-
公園
北区立 名主の滝公園
1026m
銀行
みずほ銀行王子支店
829m
幼稚園
-
小学校
-
中学校
-
高校
-

北区豊島マンションの近隣物件

前へ
次へ

生活情報

北区の暮らしデータ

北区は、武蔵野台地の縁辺部から東京低地へと連続した地勢を有し、荒川、隅田川、石神井川といった水辺空間に囲まれた、緑豊かな自然が魅力のまちです。これら河川周辺は憩いの空間として整備されており、週末にはスポーツやレジャーを楽しむ多くの人々で賑わっています。一方、JRの駅が都内最多の11駅あり、加えて、地下鉄・都電が区内各所を走り、交通の利便性が抜群です。また、子どもが安心して遊べる公園が数多く設置され、商店街も活気があり、暮らしやすい環境がそろっています。

基本データ

市区役所所在地 北区王子本町1-15-22
公式ホームページURL https://www.city.kita.tokyo.jp//
総人口 355,213人
人口増減率(2015年/2020年) 104.1%
北区の生活情報を詳しくみる

地域のおすすめ情報ブログ

取扱店舗

株式会社リライフ
交通
四ツ谷駅 徒歩3分JR中央総武線・東京メトロ丸ノ内線・東京メトロ南北線四谷三丁目駅 徒歩9分東京メトロ丸ノ内線
営業時間
10:00 〜 18:30
定休日
毎週水曜日