6万円
2DK
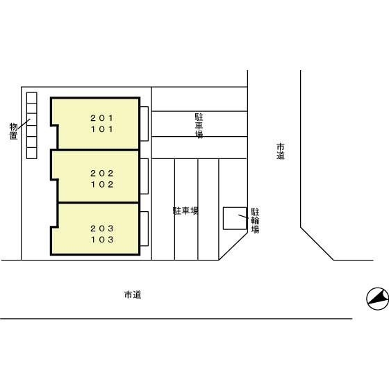
種別 アパート
専有面積 44.06㎡
おすすめ
ポイント
インターネット無料です!(D.U-NET。回線工事後使用可)
ウォークインクローゼットが収納に役立ちます!
築年月 | 2008年3月 |
---|---|
構造 | 軽量鉄骨造 |
所在階 | 2階建ての1階 |
向き | - |
バルコニー面積 | - |
駐車場 | 有り(無料) |
入居可能日 | 2025年10月25日予定 |
賃貸借の種類 | 普通賃貸借 |
契約期間 | 2年 |
共益費・管理費 | 5,000円 |
敷金 | - |
礼金 | 60,000円 |
保証金 | - |
償却金 | - |
更新料 | 60,000円 |
保証料等 | 要加入 |
保証会社補足 | - |
取引態様 | 媒介 |
情報更新日 | 2025年10月17日 |
次回更新予定日 | 2025年10月25日 |
設備・特記
《設備》TVモニター付きインターホン/火災警報器(報知機)/エアコン/バス・トイレ別/追い焚き風呂/洗髪洗面化粧台/温水洗浄便座/シャワー/フローリング/バルコニー/室内洗濯機置場/下駄箱/ウォークインクロゼット/物置/角部屋/敷地内駐車場/駐輪場/プロパンガス/公営水道/インターネット対応/CATV/BSアンテナ
《その他一時金》ルームクリーニング料金:60500円 / ICロック電池(初回):2750円
《その他月額費用》-
備考
《その他》機関保証加入必須。 機関保証料は月額賃料等総額の3.4%+800円/月(その他商品あり) ● 65歳以上の方の契約は定期借家契約(2年再契約型)、機関保証の加入が必須となります(初回保証料:月額賃料等合計額×100%,更新:2万円/1年)●ペット飼育不可
※現状と異なる場合は、現状を優先させていただきます。取引態様の欄に「媒介」と表示された物件は「仲介物件」です。ご成約の際には仲介手数料を申し受けます。