14.4万円
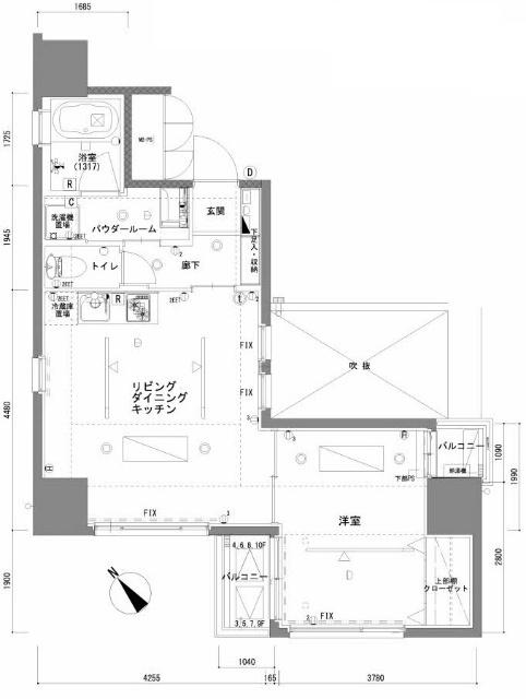
1LDK
種別 マンション
専有面積 44.35㎡
おすすめ
ポイント
オートロックの内側に屋根付き駐輪場!
お探しの地域の治安・お買い物情報、入居審査、契約金の相談等なんでもお気軽にご相談ください。 お客様駐車場、キッズスペースございます。
| 築年月 | 2018年3月 |
|---|---|
| 構造 | 鉄筋コンクリート造 |
| 所在階 | 10階建ての10階 |
| 向き | 南西 |
| バルコニー面積 | - |
| 駐車場 | なし |
| 入居可能日 | 2026年4月30日予定 |
| 賃貸借の種類 | 普通賃貸借 |
| 契約期間 | 2年 |
| 共益費・管理費 | 15,000円 |
| 敷金 | 14.4万円 |
| 礼金 | 144,000円 |
| 保証金 | - |
| 償却金 | - |
| 更新料 | 更新後賃料:1ヶ月 |
| 保証料等 | 要加入(2年20000円) |
| 保証会社補足 | 初回保証料:賃料等50%、継続保証料:1% |
| 取引態様 | 媒介 |
| 情報更新日 | 2026年1月27日 |
| 次回更新予定日 | 2026年2月3日 |
設備・特記
《設備》オートロック/TVモニター付きインターホン/防犯カメラ/インターネット対応/BSアンテナ/CSアンテナ/光回線/角部屋/エレベータ/駐輪場/敷地内ごみ置き場/システムキッチン/ガスコンロ(2口)/フローリング/バルコニー/室内洗濯機置場/下駄箱/クローゼット/照明器具/バス・トイレ別/浴室乾燥機/追い焚き風呂/洗髪洗面化粧台/独立洗面台/温水洗浄便座/シャワー/洗面化粧台/エアコン
《物件の特徴》保証会社利用可/二人入居可/保証人不要/初期費用カード決済可
《その他一時金》鍵交換費用:38500円 / 24hサポート:16500円
《その他月額費用》-
備考
《クレジットカード決済》初期費用クレジット決済可
《その他》駐輪場:月額300円 退去時費用:ルームクリーニング費用122000円(税別・エアコンクリーニング費用含む) 1年未満の解約:賃料等の1ヶ月分の短期解約違約金あり
※現状と異なる場合は、現状を優先させていただきます。取引態様の欄に「媒介」と表示された物件は「仲介物件」です。ご成約の際には仲介手数料を申し受けます。