61.2万円
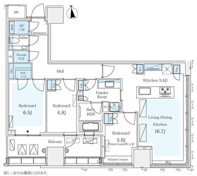
3LDK
種別 マンション
専有面積 83.58㎡
おすすめ
ポイント
半蔵門駅徒歩8分の地上18階建てマンションです
パークコート ザ・三番町ハウスは2025年築のきれいなマンションです! 3LDKタイプ(83.58㎡)ファミリー様向けの間取りです。
| 築年月 | 2025年11月 |
|---|---|
| 構造 | 鉄筋コンクリート造 |
| 所在階 | 18階建ての6階 |
| 向き | 南 |
| バルコニー面積 | - |
| 駐車場 | なし |
| 入居可能日 | 相談 |
| 賃貸借の種類 | 定期賃貸借 |
| 契約期間 | 2年 |
| 共益費・管理費 | - |
| 敷金 | 61.2万円 |
| 礼金 | 612,000円 |
| 保証金 | - |
| 償却金 | - |
| 更新料 | - |
| 保証料等 | 要加入 |
| 保証会社補足 | 初回保証委託料(最低15,000円):月額賃料等の50%、 2年目以降:10,000円/年 |
| 取引態様 | 媒介 |
| 情報更新日 | 2025年12月17日 |
| 次回更新予定日 | 2025年12月24日 |
設備・特記
《設備》エアコン/床暖房/バス・トイレ別/浴室乾燥機/追い焚き風呂/独立洗面台/フローリング/バルコニー/室内洗濯機置場/ウォークインクロゼット/システムキッチン/食器乾燥機/食器洗浄乾燥機/グリル/分譲マンションタイプ/エレベータ/宅配ボックス/フロントサービス/敷地内ごみ置き場/BSアンテナ/CSアンテナ/オートロック
《物件の特徴》新築/事務所利用不可
《その他一時金》室内清掃費:156294円
《その他月額費用》口座振替事務手数料:110円/月
備考
※現状と異なる場合は、現状を優先させていただきます。取引態様の欄に「媒介」と表示された物件は「仲介物件」です。ご成約の際には仲介手数料を申し受けます。