15.8万円
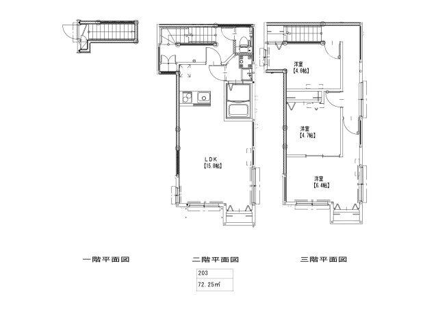
3LDK
種別 アパート
専有面積 72.25㎡
おすすめ
ポイント
こだわりポイント満載のソルナクレイシア大泉学園。鍵がかかる宅配ボックスに荷物を届けることで、外に置く
| 築年月 | 2025年7月 |
|---|---|
| 構造 | 重量鉄骨造 |
| 所在階 | 3階建ての2階 |
| 向き | - |
| バルコニー面積 | - |
| 駐車場 | なし |
| 入居可能日 | 相談 |
| 賃貸借の種類 | 普通賃貸借 |
| 契約期間 | 2年 |
| 共益費・管理費 | 15,000円 |
| 敷金 | - |
| 礼金 | - |
| 保証金 | - |
| 償却金 | - |
| 更新料 | 更新前賃料:1ヶ月 |
| 保証料等 | 要加入 |
| 保証会社補足 | 総賃料の60%、年間保証料:1.3万円、口座振替手数料:月額330円 |
| 取引態様 | 媒介 |
| 情報更新日 | 2025年11月7日 |
| 次回更新予定日 | 2025年11月13日 |
設備・特記
《設備》バス・トイレ別/浴室乾燥機/追い焚き風呂/独立洗面台/温水洗浄便座/トイレ/エアコン/TVモニター付きインターホン/インターネット無料/CATV/BSアンテナ/CSアンテナ/宅配ボックス/都市ガス/公営水道/下水/システムキッチン/IHコンロ/フローリング/下駄箱/クローゼット
《物件の特徴》新築/ペット不可/楽器不可/事務所利用不可/ルームシェア不可/保証人不要
《その他一時金》室内清掃費用:110000円
《その他月額費用》-
備考
《その他》ぜひ一度見ていただきたい、「ソルナクレイシア大泉学園」です。収納はクロゼット・シューズボックスなどが備え付けられているので、衣類や日用品の収納に重宝します。大泉学園周辺にお引越し予定でしたら、お客様のニーズに合ったお部屋を探します。info@sk-com.jpか03-5909-5601で、ピタットハウス新宿西口店にご連絡ください。
※現状と異なる場合は、現状を優先させていただきます。取引態様の欄に「媒介」と表示された物件は「仲介物件」です。ご成約の際には仲介手数料を申し受けます。