19万円
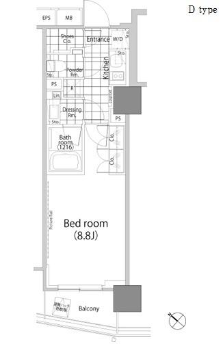
1K
種別 マンション
専有面積 29.29㎡
おすすめ
ポイント
ぜひ一度見ていただきたい、「パークハビオ赤坂タワー」です。暖房機能を使えば寒い時期の室温差を抑えてヒ
| 築年月 | 2015年2月 |
|---|---|
| 構造 | 鉄筋コンクリート造 |
| 所在階 | 地下1階・地上21階建ての3階 |
| 向き | 南西 |
| バルコニー面積 | 3.56㎡ |
| 駐車場 | 有り 月額66,000円 |
| 入居可能日 | 2026年1月31日予定 |
| 賃貸借の種類 | 普通賃貸借 |
| 契約期間 | 2年 |
| 共益費・管理費 | 10,000円 |
| 敷金 | 19万円 |
| 礼金 | 190,000円 |
| 保証金 | - |
| 償却金 | - |
| 更新料 | 190,000円 |
| 保証料等 | 要加入 |
| 保証会社補足 | 初年度保証料:賃料等合計額の50%(最低保証料2万円)2年目以降:1年毎1万円 |
| 取引態様 | 媒介 |
| 情報更新日 | 2026年1月14日 |
| 次回更新予定日 | 2026年1月17日 |
設備・特記
《設備》システムキッチン/ガスコンロ(2口)/フローリング/バルコニー/室内洗濯機置場/照明器具/バス・トイレ別/浴室乾燥機/追い焚き風呂/温水洗浄便座/シャワー/エアコン/オートロック/TVモニター付きインターホン/防犯カメラ/インターネット対応/エレベータ/宅配ボックス/敷地内駐車場/キッズルーム
《物件の特徴》ペット相談可/ピアノ相談可/事務所使用可
《その他一時金》鍵交換費用:33000円
《その他月額費用》-
備考
《その他》ぜひ一度見ていただきたい、「パークハビオ赤坂タワー」です。不在時でも荷物を受け取ることができるため、時間調整の手間が省ける宅配ボックスが付いています。浴室乾燥機を設置しているので、雨の日で濡れた上着や傘もすぐに乾燥できます。安定した暮らしを、赤坂駅周辺でお求めならピタットハウス新宿西口店まで。こだわりの条件を、03-5909-5601からお申し付けください。
※現状と異なる場合は、現状を優先させていただきます。取引態様の欄に「媒介」と表示された物件は「仲介物件」です。ご成約の際には仲介手数料を申し受けます。