9.3万円
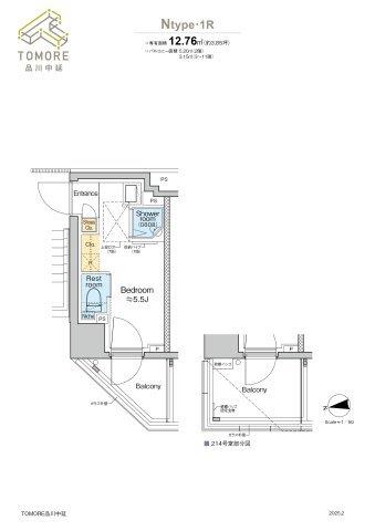
1R
種別 マンション
専有面積 12.76㎡
おすすめ
ポイント
TOMORE品川中延:中延駅にも近くて便利。室内設備はエアコン・CATV・ネット使用料不要など大変充
| 築年月 | 2025年2月 |
|---|---|
| 構造 | 鉄筋コンクリート造 |
| 所在階 | 11階建ての3階 |
| 向き | 西 |
| バルコニー面積 | - |
| 駐車場 | 空きなし |
| 入居可能日 | 2026年2月10日予定 |
| 賃貸借の種類 | 定期賃貸借 |
| 契約期間 | 2年 |
| 共益費・管理費 | 15,000円 |
| 敷金 | - |
| 礼金 | - |
| 保証金 | - |
| 償却金 | - |
| 更新料 | 更新前賃料:1ヶ月 |
| 保証料等 | 要加入 |
| 保証会社補足 | 【B】賃料総額40%/月額800円【GTN】賃料総額50%/月額2,000円 詳細:個人・法人 利用可能 / 最低保証料:15,000円 / 月額800円 【B1】※ベーシックプラン 【GP80】※ |
| 取引態様 | 媒介 |
| 情報更新日 | 2026年1月15日 |
| 次回更新予定日 | 2026年1月17日 |
設備・特記
《設備》フローリング/下駄箱/バス・トイレ別/トイレ/エアコン/オートロック/インターネット対応/インターネット無料/CATV/エレベータ/宅配ボックス/敷地内駐車場/駐輪場/都市ガス/公営水道/下水
《物件の特徴》ペット不可/楽器不可/定期借家権/単身者限定/事務所利用不可/ルームシェア不可/2人入居不可
《その他一時金》鍵交換費用:14300円 / 室内清掃費用:81400円
《その他月額費用》-
備考
《その他》水道光熱費13750円(月額) 共用部には宅配ボックスが付いているため、家で何時間も待機する必要がありません。室内設備はCATV・ネット使用料不要・エアコンなどが揃っており、とても充実しています。地上11階建てのマンション。ピタットハウス新宿西口店の個性豊かなスタッフがあなたのお部屋探しを楽しくサポート致します。ご依頼は03-5909-5601/info@sk-com.jpから、お待ちしております
※現状と異なる場合は、現状を優先させていただきます。取引態様の欄に「媒介」と表示された物件は「仲介物件」です。ご成約の際には仲介手数料を申し受けます。