11万円
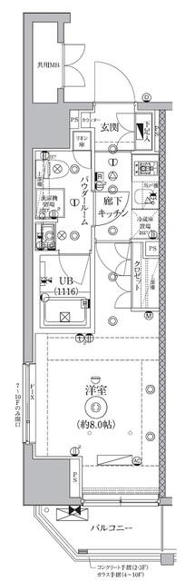
1K
種別 マンション
専有面積 26.12㎡
おすすめ
ポイント
留守中に注文した商品が届くので、配送時間を気にせず注文ができる宅配ボックスが共用部に付いています。浴
| 築年月 | 2022年11月 |
|---|---|
| 構造 | 鉄筋コンクリート造 |
| 所在階 | 13階建ての7階 |
| 向き | - |
| バルコニー面積 | 3.03㎡ |
| 駐車場 | なし |
| 入居可能日 | 2026年2月10日予定 |
| 賃貸借の種類 | 普通賃貸借 |
| 契約期間 | 2年 |
| 共益費・管理費 | 15,000円 |
| 敷金 | - |
| 礼金 | - |
| 保証金 | - |
| 償却金 | - |
| 更新料 | 更新前賃料:1ヶ月 |
| 保証料等 | 要加入 |
| 保証会社補足 | - |
| 取引態様 | 媒介 |
| 情報更新日 | 2026年1月18日 |
| 次回更新予定日 | 2026年1月24日 |
設備・特記
《設備》ガスコンロ(2口)/フローリング/バルコニー/室内洗濯機置場/バス・トイレ別/浴室乾燥機/追い焚き風呂/温水洗浄便座/エアコン/オートロック/インターネット対応/BSアンテナ/エレベータ/宅配ボックス/駐輪場/都市ガス
《物件の特徴》ペット相談可
《その他一時金》-
《その他月額費用》-
備考
《その他》浴室乾燥機が付いているので、浴室を暖房機能で温めておくことで急激な温度変化によるヒートショックの予防もできます。共用部には宅配ボックスが備え付けられているため、外出が多い方でも荷物を受け取ることができます。ペットがお好きな方にうれしい、ペット相談可の物件です。台東区への引っ越しならピタットハウス新宿西口店にお任せください!お客様の様々なこだわり条件から、適したお部屋をご紹介させていただきます。
※現状と異なる場合は、現状を優先させていただきます。取引態様の欄に「媒介」と表示された物件は「仲介物件」です。ご成約の際には仲介手数料を申し受けます。