28万円
事務所
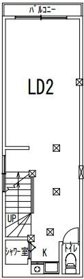
種別 事務所
専有面積 50.00㎡
おすすめ
ポイント
こだわりポイント満載の伊藤ビル。快適なお住まい、オシャレな雰囲気でオフィスにもできます。毎日綺麗な眺
| 築年月 | 1971年2月 |
|---|---|
| 構造 | 重量鉄骨造 |
| 所在階 | 5階建ての4階 |
| 向き | 南 |
| バルコニー面積 | - |
| 駐車場 | なし |
| 入居可能日 | 相談 |
| 賃貸借の種類 | 定期賃貸借 |
| 契約期間 | 3年 |
| 共益費・管理費 | 20,000円 |
| 敷金 | 84万円 |
| 礼金 | - |
| 保証金 | - |
| 償却金 | - |
| 更新料 | 更新前賃料:1ヶ月 |
| 保証料等 | 要加入 |
| 保証会社補足 | - |
| 取引態様 | 媒介 |
| 情報更新日 | 2026年2月3日 |
| 次回更新予定日 | 2026年2月6日 |
設備・特記
《設備》シャワー/トイレ/バルコニー/都市ガス/公営水道/下水/TVモニター付きインターホン
《物件の特徴》事務所使用可/IT重説対応物件/ペット不可/二人入居可/定期借家権
《その他一時金》鍵交換費:27500円
《その他月額費用》-
備考
《その他》「伊藤ビル」:新宿区エリアの新居にピッタリ。リフォーム済みのお部屋なので、内装が新しくなった部屋にリーズナブルな家賃で住むことができます。設備条件が充実した月々28万円台のお部屋です。快適なお住まい、オシャレな雰囲気でオフィスにもできます。礼金不要ですので節約にもなってご家族様の家計を圧迫しません。礼金不要というメリットは経済的にも得する嬉しい利点であります。
※現状と異なる場合は、現状を優先させていただきます。取引態様の欄に「媒介」と表示された物件は「仲介物件」です。ご成約の際には仲介手数料を申し受けます。