12.5万円
1K
種別 マンション
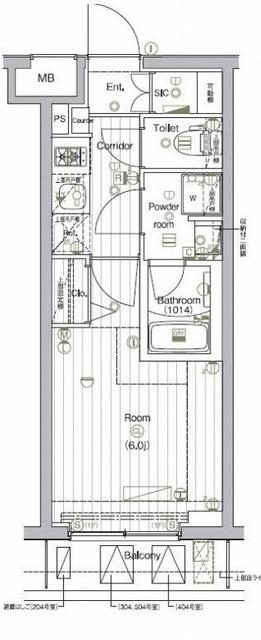
専有面積 21.75㎡
おすすめ
ポイント
ぜひ一度見ていただきたい、「THE PREMIUM CUBE G 大崎」です。エントランスのオートロ
| 築年月 | 2020年4月 |
|---|---|
| 構造 | 鉄筋コンクリート造 |
| 所在階 | 5階建ての4階 |
| 向き | 南 |
| バルコニー面積 | 2.90㎡ |
| 駐車場 | なし |
| 入居可能日 | 2026年6月10日予定 |
| 賃貸借の種類 | 普通賃貸借 |
| 契約期間 | 2年 |
| 共益費・管理費 | 15,000円 |
| 敷金 | 12.5万円 |
| 礼金 | 125,000円 |
| 保証金 | - |
| 償却金 | - |
| 更新料 | 更新前賃料:1.5ヶ月 |
| 保証料等 | 要加入 |
| 保証会社補足 | - |
| 取引態様 | 媒介 |
| 情報更新日 | 2026年4月1日 |
| 次回更新予定日 | 2026年4月4日 |
設備・特記
《設備》オートロック/インターネット対応/BSアンテナ/宅配ボックス/駐輪場/都市ガス/ガスコンロ(2口)/フローリング/バルコニー/室内洗濯機置場/バス・トイレ別/浴室乾燥機/温水洗浄便座/エアコン
《物件の特徴》ペット相談可
《その他一時金》入居中サポート:21450円 / 室内抗菌処理代:17600円 / 事務手数料:11000円
《その他月額費用》-
備考
《その他》こだわりで選びたい方におすすめ。品川区エリアで住まいをお探しなら「THE PREMIUM CUBE G 大崎」。建物の共用部には安全性に優れているオートロック機能を備えております。チューナーのご用意と契約のみで、BSが視聴可能です。多種多様な賃貸情報を扱うピタットハウス新宿西口店なら、お客様に合ったお住まいがきっと見つかります。お電話03-5909-5601からご連絡お待ちしております。
※現状と異なる場合は、現状を優先させていただきます。取引態様の欄に「媒介」と表示された物件は「仲介物件」です。ご成約の際には仲介手数料を申し受けます。