7.5万円
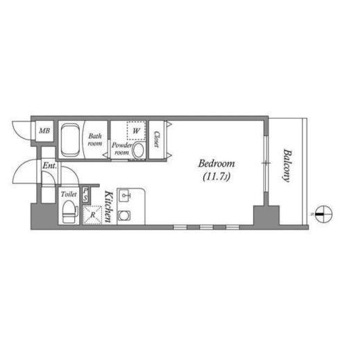
1K
種別 マンション
専有面積 25.79㎡
おすすめ
ポイント
ネット無料★オール電化★オートロック★防犯カメラ★宅配BOX★システムキッチン★ウォッシュレット等設備充実★案内は現地待ち合わせ可!電話予約&成約でQUOカード500円★ピタットハウスJR尼崎駅南口店
| 築年月 | 2006年2月 |
|---|---|
| 構造 | 鉄筋コンクリート造 |
| 所在階 | 10階建ての4階 |
| 向き | 南 |
| バルコニー面積 | - |
| 駐車場 | なし |
| 入居可能日 | 2026年6月10日予定 |
| 賃貸借の種類 | 普通賃貸借 |
| 契約期間 | 2年 |
| 共益費・管理費 | 15,000円 |
| 敷金 | - |
| 礼金 | - |
| 保証金 | - |
| 償却金 | - |
| 更新料 | - |
| 保証料等 | 要加入 |
| 保証会社補足 | 総賃料30% |
| 取引態様 | 媒介 |
| 情報更新日 | 2026年4月30日 |
| 次回更新予定日 | 2026年5月7日 |
設備・特記
《設備》システムキッチン/免震構造/エレベータ/宅配ボックス/オール電化/CATV/BSアンテナ/CSアンテナ/光回線/オートロック/TVモニター付きインターホン/エアコン/バス・トイレ別/洗髪洗面化粧台/温水洗浄便座/シャワー/フローリング/室内洗濯機置場/下駄箱/クローゼット
《物件の特徴》高齢者歓迎
《その他一時金》鍵交換費用:16500円
《その他月額費用》-
備考
※現状と異なる場合は、現状を優先させていただきます。取引態様の欄に「媒介」と表示された物件は「仲介物件」です。ご成約の際には仲介手数料を申し受けます。