35万円

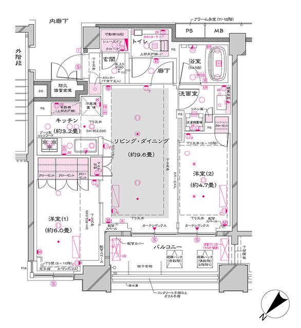
2LDK

種別 マンション

専有面積 55.38㎡

オーパスレジデンス銀座イースト(205)

おすすめポイント

おすすめ
ポイント

写真:物件の写真
写真:その他物件の写真01
写真:その他物件の写真02
NoImage

物件概要

築年月 2021年1月
構造 鉄筋コンクリート造
所在階 12階建ての2階
向き 北西
バルコニー面積 7.00㎡
駐車場 なし
入居可能日 2026年4月26日予定
賃貸借の種類 定期賃貸借
契約期間 2年
共益費・管理費 15,000円
敷金 35万円
礼金 -
保証金 -
償却金 -
更新料 -
保証料等 要加入
保証会社補足 初回保証委託料(最低15,000円):月額賃料等の50%、 2年目以降:10,000円/年
取引態様 媒介
情報更新日 2026年2月5日
次回更新予定日 2026年2月13日

※現状と異なる場合は、現状を優先させていただきます。取引態様の欄に「媒介」と表示された物件は「仲介物件」です。ご成約の際には仲介手数料を申し受けます。

ピタットハウス阿佐ヶ谷店TEL:03-6276-9920