10.2万円
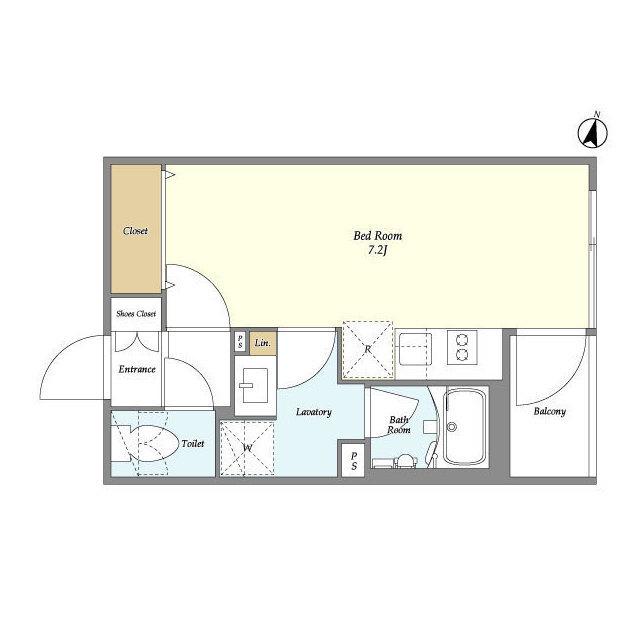
1R
種別 マンション
専有面積 20.71㎡
おすすめ
ポイント
■インターネット使用料無料(※ イーブロードコミュニケーションズに限る)
築年月 | 2024年3月 |
---|---|
構造 | 鉄筋コンクリート造 |
所在階 | 地下1階・地上4階建ての3階 |
向き | 東 |
バルコニー面積 | - |
駐車場 | なし |
入居可能日 | 2025年11月20日予定 |
賃貸借の種類 | 普通賃貸借 |
契約期間 | 2年 |
共益費・管理費 | 12,000円 |
敷金 | 10.2万円 |
礼金 | 102,000円 |
保証金 | - |
償却金 | - |
更新料 | 更新後賃料:1ヶ月 |
保証料等 | 要加入(2年16550円) |
保証会社補足 | オリコフォレントインシュア 保証料:賃料等の50%(最低2万)、月次保証料:賃料等の1%(更新料無) |
取引態様 | 媒介 |
情報更新日 | 2025年10月3日 |
次回更新予定日 | 2025年10月9日 |
設備・特記
《設備》エアコン/バス・トイレ別/浴室乾燥機/独立洗面台/温水洗浄便座/室内洗濯機置場/エレベータ/宅配ボックス/駐輪場/インターネット無料/オートロック/防犯カメラ
《その他一時金》鍵交換代:44000円 / 清掃費:44000円 / エアコン清掃費:16500円
《その他月額費用》-
備考
《その他》■指定保証会社利用必須※一部法人契約除く・敷金2カ月 【禁止事項】楽器演奏・ペット飼育・SOHO・民泊利用 ■解約予告2ヶ月前■電話回線使用不可 ■自転車置場有料※月額330円(税込)1世帯1台まで。サイズ制限あり ■インターネット使用料無料(※ イーブロードコミュニケーションズに限る)
※現状と異なる場合は、現状を優先させていただきます。取引態様の欄に「媒介」と表示された物件は「仲介物件」です。ご成約の際には仲介手数料を申し受けます。