39.9万円
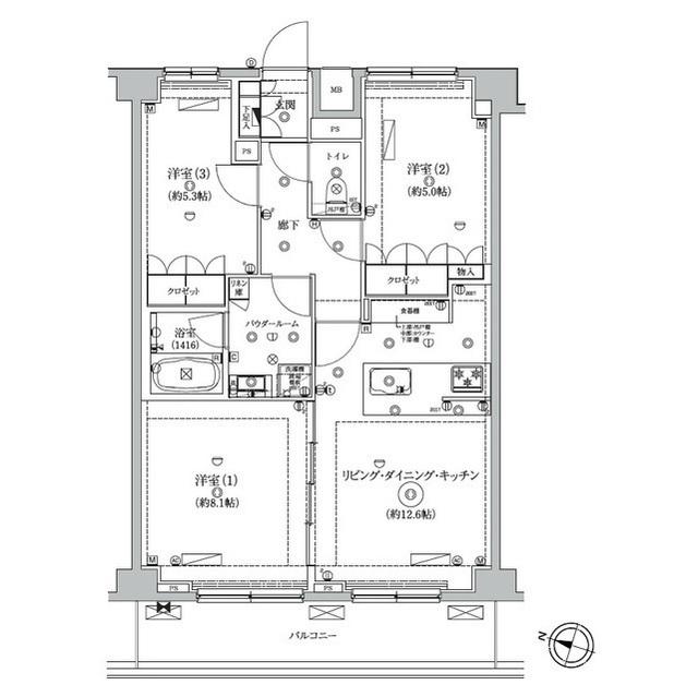
3LDK
種別 マンション
専有面積 71.40㎡
おすすめ
ポイント
■敷金0ヶ月!■最上階!
 
            
         
                
             
                
             
                
            | 築年月 | 2022年2月 | 
|---|---|
| 構造 | 鉄筋コンクリート造 | 
| 所在階 | 地下1階・地上7階建ての7階 | 
| 向き | 南西 | 
| バルコニー面積 | - | 
| 駐車場 | なし | 
| 入居可能日 | 2025年11月10日予定 | 
| 賃貸借の種類 | 定期賃貸借 | 
| 契約期間 | 2年 | 
| 共益費・管理費 | 20,000円 | 
| 敷金 | - | 
| 礼金 | 399,000円 | 
| 保証金 | - | 
| 償却金 | - | 
| 更新料 | - | 
| 保証料等 | 要加入(2年16550円) | 
| 保証会社補足 | エポスカード(RP) 保証料:賃料等の50%(最低2万)、月額保証料:賃料等の1%(更新料無) | 
| 取引態様 | 媒介 | 
| 情報更新日 | 2025年10月31日 | 
| 次回更新予定日 | 2025年11月6日 | 
設備・特記
                    
                        
                            
                                《設備》エレベータ/宅配ボックス/駐輪場/常時ゴミ出し可能/バイク置場/オートロック/防犯カメラ/その他インターネット 
                            
                        
                        
                            
                                《物件の特徴》ペット相談可/定期借家権 
                            
                        
                    
                    《その他一時金》鍵交換代:33000円 / 清掃費:74690円 
                    《その他月額費用》- 
                    
                
備考
                    
                    
                    
                    
                    
                    
                        《その他》■法人契約等保証会社利用不可の場合:敷金1ヶ月積み増し■退居時エアコン清掃費・室内清掃費がかかります■解約予告2ヶ月前※一部法人のみ相談可■ペット飼育可(小型犬1匹または猫1匹、敷金1ヶ月積み増し)■普通借家契約相談可能■Aladdin X2 Lightは残置物につき、入居中の維持管理は借主とし貸主は修繕義務を追わない。退去時の持ち出しは不可、持ち出した場合は退去時に費用を請求いたします。
                    
                
※現状と異なる場合は、現状を優先させていただきます。取引態様の欄に「媒介」と表示された物件は「仲介物件」です。ご成約の際には仲介手数料を申し受けます。