15.5万円
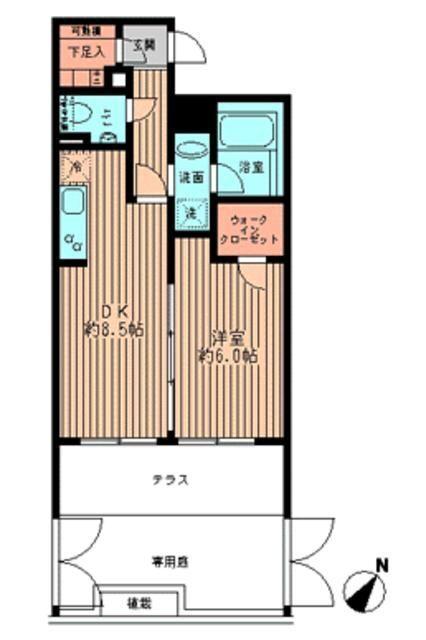
1LDK
種別 マンション
専有面積 38.79㎡
おすすめ
ポイント
他社掲載物件も一括手配!即日対応のLINEでご連絡下さい!
<<LINEID:@050wbngh>>
| 築年月 | 2005年3月 |
|---|---|
| 構造 | 鉄筋コンクリート造 |
| 所在階 | 地下1階・地上7階建ての1階 |
| 向き | 南 |
| バルコニー面積 | - |
| 駐車場 | なし |
| 入居可能日 | 2026年2月20日予定 |
| 賃貸借の種類 | 普通賃貸借 |
| 契約期間 | 2年 |
| 共益費・管理費 | 6,000円 |
| 敷金 | 15.5万円 |
| 礼金 | 155,000円 |
| 保証金 | - |
| 償却金 | - |
| 更新料 | 更新後賃料:1ヶ月 |
| 保証料等 | 要加入(2年24000円) |
| 保証会社補足 | 加入要 【収納代行】初回保証料賃料共益費等50%(連保無)、30%(連保有)、以後1年毎25% 月々口座振替 |
| 取引態様 | 媒介 |
| 情報更新日 | 2026年2月7日 |
| 次回更新予定日 | 2026年2月14日 |
設備・特記
《設備》バス・トイレ別/浴室乾燥機/トイレ/エアコン/全居室エアコン/オートロック/TVモニター付きインターホン/モニタ付オートロック/オートロック置き配対応/インターネット対応/CATV/BSアンテナ/CSアンテナ/光回線/宅配ボックス/都市ガス/システムキッチン/ガスコンロ/フローリング/バルコニー/室内洗濯機置場/全居室フローリング
《物件の特徴》保証人要
《その他一時金》清掃代※20㎡超+1,375円/㎡:39600円 / 鍵発行手数料:16500円 / 鍵交換費:16500円
《その他月額費用》-
備考
※現状と異なる場合は、現状を優先させていただきます。取引態様の欄に「媒介」と表示された物件は「仲介物件」です。ご成約の際には仲介手数料を申し受けます。