13.5万円
1K
種別 マンション
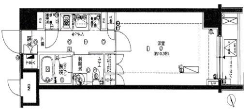
専有面積 32.02㎡
おすすめ
ポイント
礼金ゼロ!「水天宮前」駅徒歩7分☆
お買い物に便利なコンビニ、スーパー徒歩圏内にございます! お部屋探しはピタットハウス清澄白河店へ!
築年月 | 2009年3月 |
---|---|
構造 | 鉄筋コンクリート造 |
所在階 | 地下1階・地上8階建ての4階 |
向き | 北西 |
バルコニー面積 | - |
駐車場 | なし |
入居可能日 | 2025年11月10日予定 |
賃貸借の種類 | 普通賃貸借 |
契約期間 | 2年 |
共益費・管理費 | 10,000円 |
敷金 | 13.5万円 + ペット積み増し(13.5万円) 償却(小型犬・猫2匹まで) |
礼金 | - |
保証金 | - |
償却金 | - |
更新料 | 更新後賃料:1ヶ月 |
保証料等 | 要加入(2年) |
保証会社補足 | 詳細はお問い合わせください |
取引態様 | 媒介 |
情報更新日 | 2025年10月2日 |
次回更新予定日 | 2025年10月9日 |
設備・特記
《設備》最上階/分譲マンションタイプ/外壁タイル張り/エレベータ/宅配ボックス/駐輪場/都市ガス/敷地内ごみ置き場/常時ゴミ出し可能/インターネット対応/BSアンテナ/CSアンテナ/オートロック/TVモニター付きインターホン/防犯カメラ/エアコン/バス・トイレ別/浴室乾燥機/追い焚き風呂/独立洗面台/温水洗浄便座/オートバス/脱衣所/洗面所にドア/フローリング/バルコニー/室内洗濯機置場/下駄箱/クローゼット/収納スペース/全居室フローリング/全居室洋室/全居室フローリング/システムキッチン/ガスコンロ(2口)
《物件の特徴》ペット相談可/礼金不要
《その他一時金》鍵交換費用:33000円 / 安心入居サポート:16500円
《その他月額費用》保険料:1000円/月
備考
《更新事務手数料》:20,000円
※現状と異なる場合は、現状を優先させていただきます。取引態様の欄に「媒介」と表示された物件は「仲介物件」です。ご成約の際には仲介手数料を申し受けます。