14.8万円
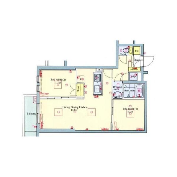
2LDK
種別 マンション
専有面積 48.73㎡
おすすめ
ポイント
            
                ☆ペットと暮らせる分譲マンション☆
                
            
            
                ○内見の際は現地や最寄り駅でのお待ち合わせも可能です〇小型犬又は猫1匹まで飼育可能☆
            
            
 
            
         
                
             
                
             
                
            | 築年月 | 2003年10月 | 
|---|---|
| 構造 | 鉄筋コンクリート造 | 
| 所在階 | 4階建ての4階 | 
| 向き | 南西 | 
| バルコニー面積 | 3.19㎡ | 
| 駐車場 | なし | 
| 入居可能日 | 2025年12月20日予定 | 
| 賃貸借の種類 | 普通賃貸借 | 
| 契約期間 | 2年 | 
| 共益費・管理費 | 12,000円 | 
| 敷金 | 14.8万円 | 
| 礼金 | 148,000円 | 
| 保証金 | - | 
| 償却金 | ・ペット飼育時:保証金1ヶ月(退去時償却)※敷金ではありません。 | 
| 更新料 | 更新後賃料:1ヶ月 | 
| 保証料等 | 要加入(2年23000円) | 
| 保証会社補足 | 初回:賃料等総額の50% 更新料:1万円/年 決済サービス料:550円(税込)/月 | 
| 取引態様 | 代理 | 
| 情報更新日 | 2025年10月30日 | 
| 次回更新予定日 | 2025年11月6日 | 
設備・特記
                    
                        
                            
                                《設備》最上階/分譲マンションタイプ/エレベータ/宅配ボックス/都市ガス/敷地内ごみ置き場/システムキッチン/ガスコンロ(3口)/フローリング/バルコニー/室内洗濯機置場/下駄箱/クローゼット/バス・トイレ別/浴室乾燥機/独立洗面台/シャワー/エアコン/オートロック/TVモニター付きインターホン/インターネット対応/BSアンテナ/CSアンテナ 
                            
                        
                        
                            
                                《物件の特徴》ペット相談可/ルームシェア可/二人入居可/二人入居相談/保証人不要/当社管理物件 
                            
                        
                    
                    《その他一時金》鍵交換費用:25300円 / ライフサポート:16500円 
                    《その他月額費用》決済サービス料:550円/月 
                    
                
備考
                    
                    
                    
                    
                    
                    
                        《その他》・ペット飼育時:保証金1ヶ月(退去時償却)※敷金ではありません。 ・ペットは小型犬又は猫1匹可 ・契約金全額又は一部クレジットカードがご利用いただけます! ・駐輪場の有無や空き状況は要確認 ・退去時の室内クリーニング費用負担があります ・鍵交換は任意です
                    
                
※現状と異なる場合は、現状を優先させていただきます。取引態様の欄に「媒介」と表示された物件は「仲介物件」です。ご成約の際には仲介手数料を申し受けます。