26万円

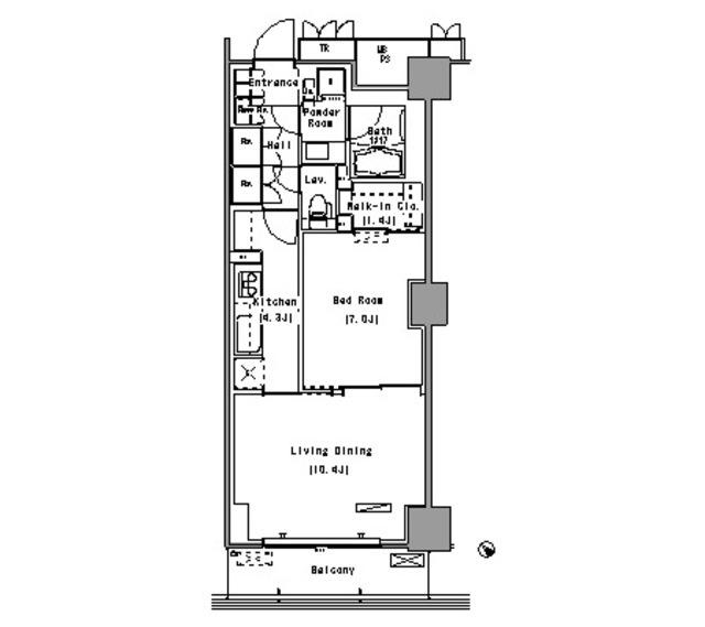
1LDK

種別 マンション

専有面積 53.13㎡

パークアクシス豊洲(1301)

おすすめポイント

おすすめ
ポイント

写真:物件の写真
写真:その他物件の写真01
写真:その他物件の写真02
写真:その他物件の写真03

物件概要

築年月 2008年3月
構造 鉄筋コンクリート造
所在階 20階建ての13階
向き 南西
バルコニー面積 6.00㎡
駐車場 有り 月額27,500円
入居可能日 2025年11月30日予定
賃貸借の種類 普通賃貸借
契約期間 2年
共益費・管理費 6,000円
敷金 26万円
礼金 260,000円
保証金 -
償却金 -
更新料 更新後賃料:1ヶ月
保証料等 要加入
保証会社補足 初回保証委託料(最低20,000円):月額賃料等の50%、 2年目以降:9,600円/年
取引態様 媒介
情報更新日 2025年10月4日
次回更新予定日 2025年10月11日

※現状と異なる場合は、現状を優先させていただきます。取引態様の欄に「媒介」と表示された物件は「仲介物件」です。ご成約の際には仲介手数料を申し受けます。

ピタットハウス錦糸町北口店TEL:03-5610-7045