9.1万円
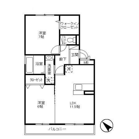
2LDK
種別 アパート
専有面積 58.37㎡
おすすめ
ポイント
インターネット無料です!(工事後使用可) スーパーまで徒歩4分、コンビニまで徒歩1分でお買い物も便利ですよ!小型犬飼育可(飼育時敷金増額有)
築年月 | 2008年12月 |
---|---|
構造 | 軽量鉄骨造 |
所在階 | 3階建ての1階 |
向き | - |
バルコニー面積 | - |
駐車場 | 有り 月額5,500円 |
入居可能日 | 相談 |
賃貸借の種類 | 普通賃貸借 |
契約期間 | 2年 |
共益費・管理費 | 5,500円 |
敷金 | - |
礼金 | - |
保証金 | - |
償却金 | - |
更新料 | 91,000円 |
保証料等 | 要加入 |
保証会社補足 | - |
取引態様 | 媒介 |
情報更新日 | 2025年10月13日 |
次回更新予定日 | 2025年10月20日 |
設備・特記
《設備》エアコン/エアコン2台以上/バス・トイレ別/追い焚き風呂/洗髪洗面化粧台/温水洗浄便座/フローリング/バルコニー/ウォークインクロゼット/カウンターキッチン/角部屋/宅配ボックス/敷地内駐車場/プロパンガス/公営水道/インターネット対応/CATV/BSアンテナ/オートロック/TVモニター付きインターホン/火災警報器(報知機)/カードキー
《物件の特徴》ペット相談可
《その他一時金》ルームクリーニング料金:77000円 / カードキー発行料:16500円
《その他月額費用》町会費:250円/月
備考
《その他》機関保証加入必須。 機関保証料は月額賃料等総額の3.4%+800円/月(その他商品あり) 65歳以上の方の契約は定期借家契約(2年再契約型)、機関保証の加入が必須となります(初回保証料:月額賃料等合計額×100%,更新:2万円/1年) LPガス料金はご契約前にLPガス事業者にご確認いただけます。
※現状と異なる場合は、現状を優先させていただきます。取引態様の欄に「媒介」と表示された物件は「仲介物件」です。ご成約の際には仲介手数料を申し受けます。