41.1万円
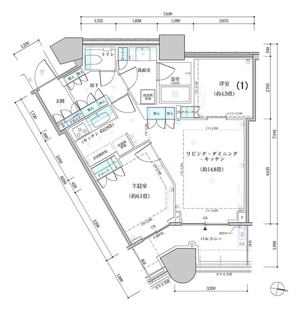
2LDK
種別 マンション
専有面積 60.25㎡
おすすめ
ポイント
築年月 | 2023年8月 |
---|---|
構造 | 鉄筋コンクリート造 |
所在階 | 58階建ての18階 |
向き | 東 |
バルコニー面積 | - |
駐車場 | なし |
入居可能日 | 2025年11月23日予定 |
賃貸借の種類 | 定期賃貸借 |
契約期間 | 2年 |
共益費・管理費 | - |
敷金 | 41.1万円 |
礼金 | 822,000円 |
保証金 | - |
償却金 | - |
更新料 | - |
保証料等 | 要加入 |
保証会社補足 | 初回保証委託料(最低20,000円):月額賃料等の50%、 2年目以降:9,600円/年 |
取引態様 | 媒介 |
情報更新日 | 2025年10月12日 |
次回更新予定日 | 2025年10月19日 |
設備・特記
《設備》オートロック/エアコン/バス・トイレ別/浴室乾燥機/追い焚き風呂/独立洗面台/フローリング/バルコニー/室内洗濯機置場/システムキッチン/グリル/分譲マンションタイプ/エレベータ/宅配ボックス/フロントサービス/敷地内ごみ置き場/タワー型マンション/バイク置場
《物件の特徴》ペット相談可/ピアノ相談可/事務所利用不可
《その他一時金》室内清掃費:112667円 / 鍵交換費:33000円
《その他月額費用》口座振替事務手数料:110円/月
備考
※現状と異なる場合は、現状を優先させていただきます。取引態様の欄に「媒介」と表示された物件は「仲介物件」です。ご成約の際には仲介手数料を申し受けます。