4.4万円
店舗
種別 店舗
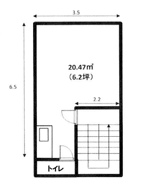
専有面積 20.47㎡
おすすめ
ポイント
大和駅徒歩2分 事務所、教室など業種相談可
スケルトン貸し 賃貸保証会社加入 都市ガス、残置物がある場合は品質保証なし
| 築年月 | 1977年4月 |
|---|---|
| 構造 | 重量鉄骨造 |
| 所在階 | 4階建ての4階 |
| 向き | - |
| バルコニー面積 | - |
| 駐車場 | なし |
| 入居可能日 | 2026年2月10日予定 |
| 賃貸借の種類 | 普通賃貸借 |
| 契約期間 | 3年 |
| 共益費・管理費 | 5,500円 |
| 敷金 | 12万円 |
| 礼金 | - |
| 保証金 | - |
| 償却金 | 4.4万円(解約時) |
| 更新料 | 更新後賃料:1ヶ月 |
| 保証料等 | 要加入 |
| 保証会社補足 | 初回保証料賃料等合計額80%(最低初回保証料50,000円) 支払手数料(毎月・更新時) 賃料等支払総額の1.3% |
| 取引態様 | 媒介 |
| 情報更新日 | 2026年1月23日 |
| 次回更新予定日 | 2026年2月14日 |
設備・特記
《設備》都市ガス
《その他一時金》鍵交換代借主負担:41800円
《その他月額費用》-
備考
《その他》残置物がある場合は品質保証なし エレベーター設置ありません
※現状と異なる場合は、現状を優先させていただきます。取引態様の欄に「媒介」と表示された物件は「仲介物件」です。ご成約の際には仲介手数料を申し受けます。