49.5万円
店舗
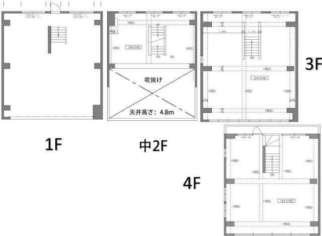
種別 店舗
専有面積 232.32㎡
おすすめ
ポイント
国道2号線沿い。1階をガレージにすれば5台は駐車できます。
阪神高速「湊川」出入口すぐ近く。コンビニまで徒歩1分。
築年月 | 1962年9月 |
---|---|
構造 | 鉄筋コンクリート造 |
所在階 | 4階建ての1階~4階 |
向き | - |
バルコニー面積 | - |
駐車場 | なし |
入居可能日 | 即可 |
賃貸借の種類 | 普通賃貸借 |
契約期間 | 2年 |
共益費・管理費 | - |
敷金 | - |
礼金 | - |
保証金 | - |
償却金 | - |
更新料 | - |
保証料等 | 要加入 |
保証会社補足 | 要確認 |
取引態様 | 媒介 |
情報更新日 | 2025年10月11日 |
次回更新予定日 | 2025年10月21日 |
設備・特記
《その他一時金》-
《その他月額費用》-
備考
《クレジットカード決済》初期費用クレジット決済可
※現状と異なる場合は、現状を優先させていただきます。取引態様の欄に「媒介」と表示された物件は「仲介物件」です。ご成約の際には仲介手数料を申し受けます。