8.4万円
3LDK
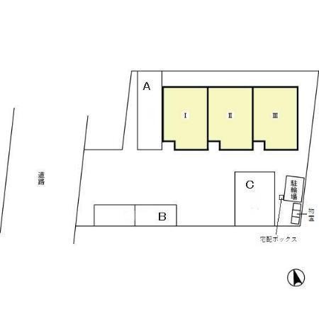
種別 テラスハウス
専有面積 79.35㎡
おすすめ
ポイント
●インターネット無料です!(D.U-NET。回線工事後使用可)●宅配BOX有り●オール電化物件(電気温水器、IHクッキングヒーター)●ペット可(小型犬に限り2匹まで)(ペット飼養の場合は敷金1か月追加預託)●
| 築年月 | 2006年7月 |
|---|---|
| 構造 | 軽量鉄骨造 |
| 所在階 | 2階建ての1階~2階 |
| 向き | - |
| バルコニー面積 | - |
| 駐車場 | 有り 月額6,600円 |
| 入居可能日 | 2026年3月11日予定 |
| 賃貸借の種類 | 普通賃貸借 |
| 契約期間 | 2年 |
| 共益費・管理費 | 5,500円 |
| 敷金 | - |
| 礼金 | 168,000円 |
| 保証金 | - |
| 償却金 | - |
| 更新料 | 84,000円 |
| 保証料等 | 要加入 |
| 保証会社補足 | - |
| 取引態様 | 媒介 |
| 情報更新日 | 2026年2月3日 |
| 次回更新予定日 | 2026年2月10日 |
設備・特記
《設備》バス・トイレ別/洗髪洗面化粧台/温水洗浄便座/エアコン/TVモニター付きインターホン/火災警報器(報知機)/カードキー/インターネット対応/CATV/角部屋/宅配ボックス/敷地内駐車場/オール電化/公営水道/カウンターキッチン/バルコニー/室内洗濯機置場/床下収納/物置
《物件の特徴》ペット相談可
《その他一時金》ルームクリーニング料金:99000円 / カードキー発行料:16500円
《その他月額費用》-
備考
《その他》機関保証加入必須。初回保証料35000円、月額保証料賃料等総額の1%+800円/月(その他商品あり) ●65歳以上の方の契約は定期借家契約(2年再契約型)DS-SS(初回保証料:月額賃料等合計額×100%・更新2万円/1年)ペット飼養の場合は敷金1か月追加預託。ルームクリーニング料金に、エアコンクリーニング費用を含みます。
※現状と異なる場合は、現状を優先させていただきます。取引態様の欄に「媒介」と表示された物件は「仲介物件」です。ご成約の際には仲介手数料を申し受けます。