16万円
2LDK
種別 マンション
専有面積 63.04㎡
おすすめ
ポイント
【1月8日退去予定♪北谷町の分譲マンション】嬉しいペット可?
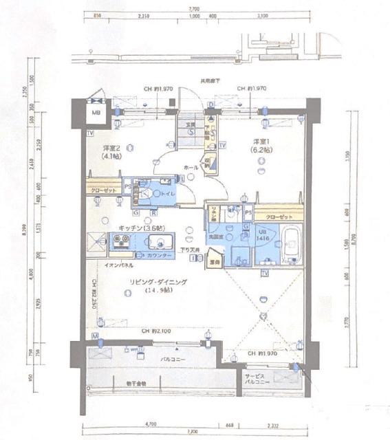
【1月8日退去予定♪北谷町桑江の築浅分譲マンション】嬉しいペット可?きれいなエントランスに設備の充実した室内♪洋室と繋げてリフォームしたLDKは広々18.5帖☆役場近くの人気エリア♪
| 築年月 | 2024年5月 |
|---|---|
| 構造 | 鉄筋コンクリート造 |
| 所在階 | 7階建ての2階 |
| 向き | 南東 |
| バルコニー面積 | - |
| 駐車場 | 有り(無料) |
| 入居可能日 | 相談 |
| 賃貸借の種類 | 定期賃貸借 |
| 契約期間 | 2年 |
| 共益費・管理費 | 10,000円 |
| 敷金 | 16万円 + ペット積み増し(16万円) |
| 礼金 | 160,000円 |
| 保証金 | - |
| 償却金 | - |
| 更新料 | - |
| 保証料等 | 要加入(2年18000円) |
| 保証会社補足 | ○家賃保証料<初回>賃料総額の50%<毎月>2.5% |
| 取引態様 | 媒介 |
| 情報更新日 | 2026年2月3日 |
| 次回更新予定日 | 2026年2月14日 |
設備・特記
《設備》インターネット対応/エレベータ/宅配ボックス/敷地内駐車場/プロパンガス/常時ゴミ出し可能/システムキッチン/カウンターキッチン/ガスコンロ(3口)/フローリング/バルコニー/室内洗濯機置場/下駄箱/クローゼット/収納スペース/衣類乾燥機/照明器具/全居室収納/陽当り良好/天井高シューズクロゼット/玄関収納/南向き/全居室洋室/バス・トイレ別/浴室乾燥機/独立洗面台/温水洗浄便座/オートロック/TVモニター付きインターホン
《物件の特徴》ペット相談可/オンライン内見可/オンライン相談可/二人入居可/保証人不要/初期費用カード決済可
《その他一時金》銀イオン施工費:16500円
《その他月額費用》安心サポート費:1650円/月
備考
《クレジットカード決済》初期費用クレジット決済可
《バイク置き場》なし
《駐輪場》なし
《その他》・P2番 普通車OK♪※車種を確認させていただきます。 ・ペット条件:成長時の体重が12kg以下で体長90cm以下の犬又は猫(併せて2匹まで) ・別途ペット保証金頂きます。(1ヶ月) 3LDKを2LDKにオーダーメイドで変更したのでLDK広々です♪ ゆとりある街並みが整い、住みやすい街へと発展してきた桑江地区。 様々な商業施設や飲?店、公園などが?活圏内で、?育てもしやすい環境です。
※現状と異なる場合は、現状を優先させていただきます。取引態様の欄に「媒介」と表示された物件は「仲介物件」です。ご成約の際には仲介手数料を申し受けます。