1,600万円
表面利回り:約5.62%
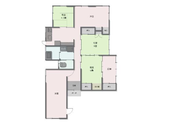
6DK
種別 一棟売り
専有面積 108.31㎡(内法)
おすすめ
ポイント
オーナーチェンジ物件!居住中です!
| 築年月 | 1968年7月 |
|---|---|
| 構造 | 木造 |
| 所在階 | 1階建ての1階 |
| 総戸数 | 1戸 |
| 向き | - |
| バルコニー面積 | - |
| 駐車場 | 駐車場有り 無料 |
| 施工会社 | - |
| 管理会社 | - |
| 管理形態 | - |
| 権利 | 所有権 |
| 借地権 | - |
| 現況 | 賃貸中 |
| 引渡時期 | 相談 |
| 引渡条件 | オーナーチェンジ/現況渡し |
| 管理費 | |
| 修繕積立金 | - |
| 取引態様 | 媒介 |
| 管理コード | AAX400120 |
設備・特記
《設備》:-
《物件の特徴》:-
備考
《満室時想定賃料》:約90万円(年間)
《その他》:用途地域:第一種住居地域 / 地勢:平坦 / 国土法届出:不要
※詳細については、Webサイトにてご確認ください。現状と異なる場合は、現状を優先させていただきます。
※取引態様の欄に「媒介」と表示された物件は「仲介物件」です。ご成約の際には仲介手数料を申し受けます。
情報更新日|2026年2月3日
次回更新予定|2026年2月18日