7,530万円
39.99坪
種別 土地
土地面積 132.23㎡
おすすめ
ポイント
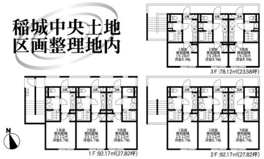
3階建アパート参考プラン有り
| 都市計画 | 市街化区域 |
|---|---|
| 用途地域 | 第二種中高層住居専用地域 |
| 建蔽率/容積率 | 50% / 150% |
| 地目 | 宅地 |
| 最適用途 | 指定なし |
| 区画整理 | - |
| 接道 | |
| 私道 | なし |
| 権利 | 所有権 |
| 借地権 | - |
| 現況 | 更地 |
| 引渡時期 | 相談 |
| 引渡条件 | |
| 取引態様 | 媒介 |
| 管理コード | AFJ400388 |
設備・特記
《設備》:都市ガス/上水道/下水道/建物プラン例有り
《物件の特徴》:-
備考
※詳細については、Webサイトにてご確認ください。現状と異なる場合は、現状を優先させていただきます。
※取引態様の欄に「媒介」と表示された物件は「仲介物件」です。ご成約の際には仲介手数料を申し受けます。
情報更新日|2026年4月11日
次回更新予定|2026年5月3日