3,990万円
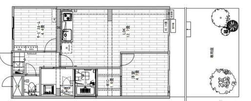
1SLDK
種別 マンション
専有面積 51.30㎡(壁芯)
おすすめ
ポイント
☆2025年7月リノベーション実施完了済☆
☆西武新宿線「井荻」駅から徒歩4分の駅近☆
☆「西武新宿」駅まで乗り換えなしでアクセス☆
☆21.6㎡専用庭付きの1LDK+S(納戸)☆
| 築年月 | 1984年9月 |
|---|---|
| 構造 | 鉄筋コンクリート造 |
| 所在階 | 3階建ての1階 |
| 総戸数 | 29戸 |
| 向き | 東 |
| バルコニー面積 | 5.40㎡ |
| 駐車場 | - |
| 施工会社 | 古久根建設(株) |
| 管理会社 | 株式会社大京アステージ |
| 管理形態 | 全部委託(巡回) |
| 権利 | 所有権 |
| 借地権 | - |
| 現況 | 空室(入居歴有) |
| 引渡時期 | 相談 |
| 引渡条件 | |
| 管理費 | 9,600円/月 |
| 修繕積立金 | 14,880円/月 |
| 取引態様 | 媒介 |
| 管理コード | AJR400097 |
設備・特記
《設備》:陽当り良好/リノベーション/室内洗濯機置場/専用庭/全居室収納/洗髪洗面化粧台/食器洗浄乾燥機/システムキッチン/床下収納/オートバス/浴室乾燥機/2口コンロ/ウォークインクローゼット/バルコニー/全居室フローリング/TVモニター付きインターホン
《物件の特徴》:☆2025年7月リノベーション実施完了済☆
備考
《その他》:施工会社(古久根建設(株)) / 管理会社(株式会社大京アステージ) / 販売戸数:1戸 / 管理組合:あり / 国土法届出:不要
※詳細については、Webサイトにてご確認ください。現状と異なる場合は、現状を優先させていただきます。
※取引態様の欄に「媒介」と表示された物件は「仲介物件」です。ご成約の際には仲介手数料を申し受けます。
情報更新日|2025年11月4日
次回更新予定|2025年11月20日