8,080万円
3LDK
種別 マンション
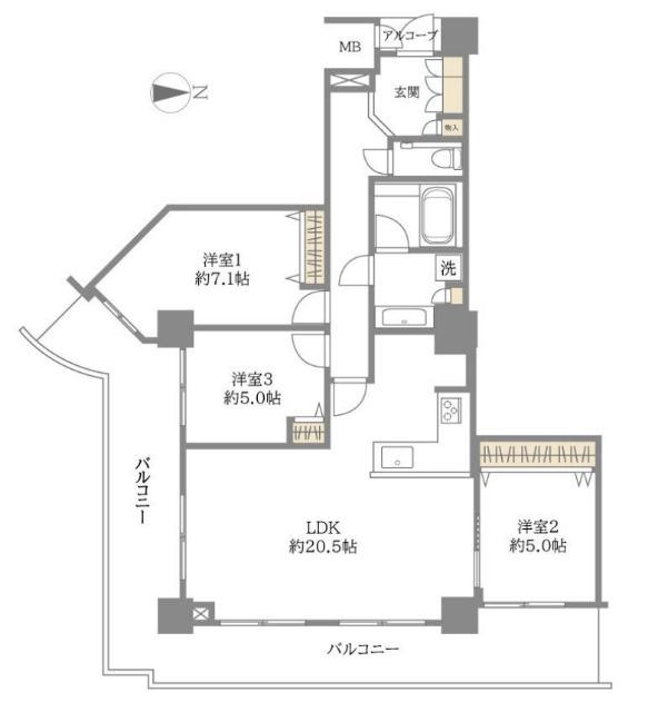
専有面積 84.08㎡(壁芯)
おすすめ
ポイント
26階建て18階部分!眺望・日当たり・防犯性の高さなどを享受!
東側・南側の引き回しバルコニー付きの角部屋のため開放感あり!
LDKは広々約20.5帖!窓も多く明るく広々と利用できます♪
北大阪急行線「箕面船場阪大前駅」徒歩2分の通勤至便な立地♪
| 築年月 | 2005年1月 |
|---|---|
| 構造 | 鉄筋コンクリート造 |
| 所在階 | 地下1階・地上26階建ての18階 |
| 総戸数 | 119戸 |
| 向き | 南東 |
| バルコニー面積 | 29.81㎡ |
| 駐車場 | 駐車場有り 15,200円/月 |
| 施工会社 | 前田建設工業(株) |
| 管理会社 | 伊藤忠アーバンコミュニティ(株) |
| 管理形態 | 全部委託(日勤) |
| 権利 | 所有権 |
| 借地権 | - |
| 現況 | 空室(入居歴有) |
| 引渡時期 | 相談 |
| 引渡条件 | |
| 管理費 | 12,280円/月 |
| 修繕積立金 | 9,250円/月 |
| 取引態様 | 媒介 |
| 管理コード | AYA400703 |
設備・特記
《設備》:陽当り良好/通風良好/床暖房/内装リフォーム/室内洗濯機置場/収納スペース/3口コンロ/LDK20畳以上/バルコニー/LDK18畳以上/24時間換気システム/バルコニー2面以上/南面バルコニー/ペット相談可/南向き/LDK15畳以上/眺望良好/全居室収納/洗髪洗面化粧台/食器洗浄乾燥機/洗面所独立/エレベータ/全居室フローリング/宅配BOX/高層階
《物件の特徴》:-
備考
《その他》:施工会社(前田建設工業(株)) / 管理会社(伊藤忠アーバンコミュニティ(株)) / 備考:※萱野東小学校・第四中学校校区 / 用途地域:商業地域 / 地勢:平坦 / 国土法届出:不要
※詳細については、Webサイトにてご確認ください。現状と異なる場合は、現状を優先させていただきます。
※取引態様の欄に「媒介」と表示された物件は「仲介物件」です。ご成約の際には仲介手数料を申し受けます。
情報更新日|2025年11月14日
次回更新予定|2025年11月28日