330万円
用途:店舗
種別 マンション
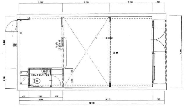
専有面積 48.93㎡(壁芯)
おすすめ
ポイント
自家用倉庫、事務所、店舗、使い道自由。
築年月 | 1993年12月 |
---|---|
構造 | 鉄筋コンクリート造 |
所在階 | 1階建ての1階 |
総戸数 | - |
向き | 北西 |
バルコニー面積 | - |
駐車場 | - |
施工会社 | - |
管理会社 | - |
管理形態 | 全部委託(日勤) |
権利 | 所有権 |
借地権 | - |
現況 | 空室(入居歴有) |
引渡時期 | 相談 |
引渡条件 | 現況渡し/相談 |
管理費 | |
修繕積立金 | - |
取引態様 | 媒介 |
管理コード | GX400031 |
設備・特記
《設備》:-
《物件の特徴》:自家用倉庫、事務所、店舗、使い道自由。
備考
《その他》:用途地域:第一種住居地域
※詳細については、Webサイトにてご確認ください。現状と異なる場合は、現状を優先させていただきます。
※取引態様の欄に「媒介」と表示された物件は「仲介物件」です。ご成約の際には仲介手数料を申し受けます。
情報更新日|2025年10月20日
次回更新予定|2025年11月4日