6,290万円
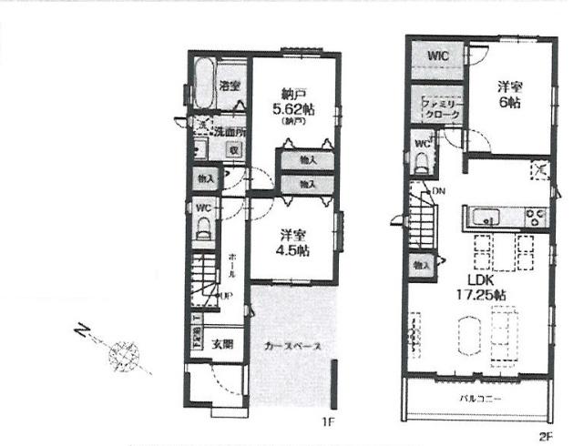
2SLDK
種別 戸建て
建物面積 84.25㎡(壁芯)
おすすめ
ポイント
こだわりの新築戸建☆完成済みで暮らしのイメージも湧いてきます♪
ライフスタイルの変化にも柔軟に対応できる2LDK+Sの間取り◎
安心の2階リビングプラン!日当たりも良好な心地よい空間です♪
WICやファミリークロークも完備で充実の収納力☆彡
築年月 | 2025年8月 |
---|---|
構造 | 木造 |
階数 | 2階建て |
土地面積 | 78.77㎡ (23.82坪) |
駐車スペース | 駐車場あり( 1台) |
都市計画 | 市街化区域 |
用途地域 | 第一種住居地域 |
建蔽率/容積率 | 60% / 180% |
地目 | 宅地 |
区画整理 | - |
接道 | 西側4.5m公道に5.8m接道 |
私道 | なし |
権利 | 所有権 |
借地権 | - |
現況 | 空室(入居歴無) |
引渡時期 | 相談 |
引渡条件 | 相談 |
取引態様 | 媒介 |
管理コード | HF402376 |
設備・特記
《設備》:陽当り良好/都市ガス/上水道/LDK15畳以上/閑静な住宅街/小学校徒歩10分以内/下水道/クローゼット/納戸/全居室収納/トイレ2ヶ所/ウォークインクローゼット/バルコニー/全居室フローリング/ビルトインガレージ
《物件の特徴》:こだわりの新築戸建☆完成済みで暮らしのイメージも湧いてきます♪
備考
《その他》:販売戸数:1戸 / 備考:都心へのアクセスも良好な都営新宿線沿線!「一之江」駅徒歩9分◎駅周辺の商業施設も利用しやすく便利な立地!小・中学校いずれも徒歩10分以内とお子様の通学も安心ですね♪ぜひご覧ください☆お客様が満足できる物件が見つかるまで全力でサポートさせて頂きます☆ / 地勢:平坦 / 国土法届出:不要
《建築確認番号》:第HPA-25-03733-1号
※詳細については、Webサイトにてご確認ください。現状と異なる場合は、現状を優先させていただきます。
※取引態様の欄に「媒介」と表示された物件は「仲介物件」です。ご成約の際には仲介手数料を申し受けます。
情報更新日|2025年9月26日
次回更新予定|2025年10月18日