1,498万円
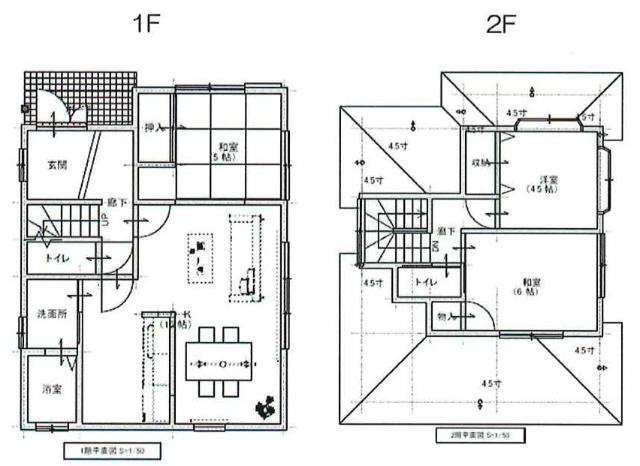
3LDK
種別 戸建て
建物面積 76.54㎡(壁芯)
おすすめ
ポイント
白子海岸まで自転車で10分のリフォーム済み戸建て
白潟小学校徒歩3分、白子中学校徒歩11分
駐車場縦列2台可能
| 築年月 | 1995年9月 |
|---|---|
| 構造 | 木造 |
| 階数 | 2階建て |
| 土地面積 | 153.61㎡ (46.46坪) |
| 駐車スペース | 駐車場あり( 2台) |
| 都市計画 | 非線引区域 |
| 用途地域 | 無指定 |
| 建蔽率/容積率 | 60% / 200% |
| 地目 | 宅地 |
| 区画整理 | - |
| 接道 | 東側5.0m私道に接道 |
| 私道 | なし |
| 権利 | 所有権 |
| 借地権 | - |
| 現況 | 空室(入居歴有) |
| 引渡時期 | 相談 |
| 引渡条件 | 現況渡し |
| 取引態様 | 媒介 |
| 管理コード | JL400078 |
設備・特記
《設備》:プロパンガス/上水道/内装リフォーム/浄化槽/小学校徒歩10分以内/カウンターキッチン/クローゼット/トイレ2ヶ所/温水洗浄便座/洗髪洗面化粧台/システムキッチン/追い焚き風呂/3口コンロ/バルコニー/駐車場2台分
《物件の特徴》:白子海岸まで自転車で10分のリフォーム済み戸建て
備考
《その他制限》:私道部分の道路持ち分あり
※詳細については、Webサイトにてご確認ください。現状と異なる場合は、現状を優先させていただきます。
※取引態様の欄に「媒介」と表示された物件は「仲介物件」です。ご成約の際には仲介手数料を申し受けます。
情報更新日|2026年1月30日
次回更新予定|2026年2月15日