3,999万円
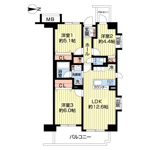
3LDK
種別 マンション
専有面積 61.35㎡(内法)
おすすめ
ポイント
武蔵野線・つくばエクスプレス線「南流山」駅から徒歩7分の好立地
7階建て4階部分/角部屋・3面採光につき日当たり・眺望良好です
適材適所に設置されたクローゼットが、すっきりキレイに片付けます
新規リノベーション物件/食洗機・浴室乾燥機など先進の仕様を装備
築年月 | 2000年11月 |
---|---|
構造 | 鉄筋コンクリート造 |
所在階 | 7階建ての4階 |
総戸数 | 53戸 |
向き | 東 |
バルコニー面積 | 10.07㎡ |
駐車場 | 駐車場有り 6,500円/月 |
施工会社 | (株)長谷工コーポレーション |
管理会社 | 日本ハウズイング株式会社 |
管理形態 | 全部委託(日勤) |
権利 | 所有権 |
借地権 | - |
現況 | 空室(入居歴有) |
引渡時期 | 2025年12月下旬予定 |
引渡条件 | |
管理費 | 7,500円/月 |
修繕積立金 | 12,500円/月 |
取引態様 | 媒介 |
管理コード | ST410614 |
設備・特記
《設備》:リノベーション/都市ガス/三面採光/室内洗濯機置場/小学校徒歩10分以内/カウンターキッチン/クローゼット/全居室収納/温水洗浄便座/食器洗浄乾燥機/システムキッチン/追い焚き風呂/3口コンロ/浴室乾燥機/エレベータ/出窓/宅配BOX/全居室フローリング/モニタ付オートロック/TVモニター付きインターホン/オートロック/バルコニー2面以上/ペット不可/角部屋
《物件の特徴》:-
備考
《その他》:施工会社((株)長谷工コーポレーション) / 管理会社(日本ハウズイング株式会社) / 備考:武蔵野線・つくばエクスプレス線「南流山」駅から徒歩7分の好立地/7階建て4階部分/角部屋・3面採光につき日当たり・眺望良好です/適材適所に設置されたクローゼットが、すっきりキレイに片付けます/新規リノベーション物件/食洗機・浴室乾燥機など先進の仕様を装備 / 用途地域:第一種住居地域 / 国土法届出:不要
※詳細については、Webサイトにてご確認ください。現状と異なる場合は、現状を優先させていただきます。
※取引態様の欄に「媒介」と表示された物件は「仲介物件」です。ご成約の際には仲介手数料を申し受けます。
情報更新日|2025年10月19日
次回更新予定|2025年11月3日