2,300万円
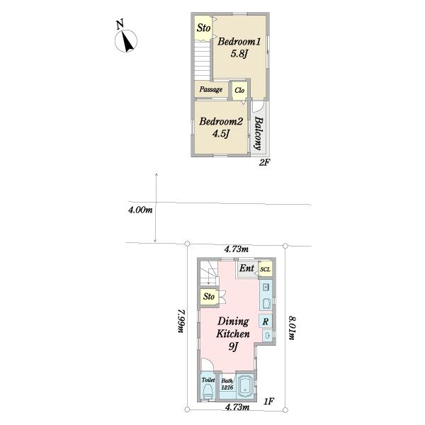
2DK
種別 戸建て
建物面積 44.71㎡(壁芯)
おすすめ
ポイント
船橋エリアで築13年で2000万円台の中古戸建!!
2024年4月外装工事済!!
各部屋エアコン実装!!
全サッシペアガラス+和紙シール貼りで断熱性とプライバシー確保!
| 築年月 | 2012年1月 |
|---|---|
| 構造 | 木造 |
| 階数 | 2階建て |
| 土地面積 | 37.84㎡ (11.44坪) |
| 駐車スペース | - |
| 都市計画 | 市街化区域 |
| 用途地域 | 第一種住居地域 |
| 建蔽率/容積率 | 60% / 200% |
| 地目 | 宅地 |
| 区画整理 | - |
| 接道 | 北側4.0m私道に4.7m接道/位置指定道路:あり |
| 私道 | 私道負担面積:8.86㎡(持分:1/1) |
| 権利 | 所有権 |
| 借地権 | - |
| 現況 | 空室(入居歴有) |
| 引渡時期 | 相談 |
| 引渡条件 | 現況渡し |
| 取引態様 | 媒介 |
| 管理コード | ST411865 |
設備・特記
《設備》:プロパンガス/エアコン/上水道/閑静な住宅街/複層ガラス/下水道/クローゼット/全居室収納/洗髪洗面化粧台/温水洗浄便座/システムキッチン/シューズインクローゼット/追い焚き風呂/浴室乾燥機/バルコニー/全居室フローリング
《物件の特徴》:船橋エリアで築13年で2000万円台の中古戸建!!2024年4月外装工事済!!各部屋エアコン実装!!
備考
《その他制限》:43条但し書き通路に面する。
《その他》:販売戸数:1戸 / 地勢:平坦 / 国土法届出:不要
《建築確認番号》:第11UDI3C建00901号
本物件は、オークション(入札)物件です。表示価格は「最低売却価格」です。
最低売却価格を下回る金額での入札も可能ですが、交渉の結果、契約に至らない可能性があります。
物件を見学の上、専用用紙にて入札をお願いします。
最も高い金額で入札されたお客様が落札(交渉)権を獲得します。詳しくは担当店舗までお問い合わせ下さい。
入札受付締切日時: 2025年12月7日10時30分
入札会場:オリエンタルホテル東京ベイ
オークションの流れについては、ホームページ(https://www.myhome-auction.com/)でご確認ください。
※詳細については、Webサイトにてご確認ください。現状と異なる場合は、現状を優先させていただきます。
※取引態様の欄に「媒介」と表示された物件は「仲介物件」です。ご成約の際には仲介手数料を申し受けます。
情報更新日|2025年11月25日
次回更新予定|2025年12月10日