6,090万円
3SLDK
種別 戸建て
建物面積 99.36㎡(壁芯)
おすすめ
ポイント
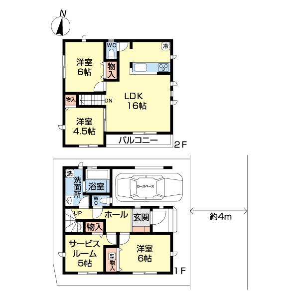
駅まで徒歩5分以内!明るさと開放感に満ちた2階リビングプラン。
2階建プラン 3SLDK+ビルトイン車庫で雨の日も出入り楽々。
家族の寛ぎのプライベート時間を過ごす、ゆとりのLDK16帖。
住宅性能評価W取得。フラット35S対応。ZEH水準の省エネ住宅
| 築年月 | 2025年12月 |
|---|---|
| 構造 | 木造 |
| 階数 | 2階建て |
| 土地面積 | 82.83㎡ (25.05坪) |
| 駐車スペース | 駐車場あり( 1台) |
| 都市計画 | 市街化区域 |
| 用途地域 | 近隣商業地域 |
| 建蔽率/容積率 | 80% / 300%/ 400% |
| 地目 | 宅地 |
| 区画整理 | - |
| 接道 | |
| 私道 | 私道負担面積:23.25㎡(持分:1/1) |
| 権利 | 所有権 |
| 借地権 | - |
| 現況 | 空室(入居歴無) |
| 引渡時期 | 2026年1月上旬予定 |
| 引渡条件 | |
| 取引態様 | 媒介 |
| 管理コード | ST412538 |
設備・特記
《設備》:BELS/省エネ基準適合/上水道/フラット35S適合・利用可/小学校徒歩10分以内/下水道/カウンターキッチン/クローゼット/浴室暖房/システムキッチン/追い焚き風呂/3口コンロ/浴室乾燥機/バルコニー/ビルトインガレージ/南面バルコニー/都市ガス/整形地/性能評価書取得/設計住宅性能評価書/LDK15畳以上/全居室収納/トイレ2ヶ所/食器洗浄乾燥機/温水洗浄便座/床下収納/全居室フローリング
《物件の特徴》:-
備考
《その他制限》:最低限度高度地区(7m)、第三種高度地区、防火地域、準防火地域
《その他》:備考:駅まで徒歩5分以内!明るさと開放感に満ちた2階リビングプラン。2階建プラン 3SLDK+ビルトイン車庫で雨の日も出入り楽々。家族の寛ぎのプライベート時間を過ごす、ゆとりのLDK16帖。住宅性能評価W取得。フラット35S対応。ZEH水準の省エネ住宅。 / 国土法届出:不要
《建築確認番号》:第HPA-25-06904-1号
※詳細については、Webサイトにてご確認ください。現状と異なる場合は、現状を優先させていただきます。
※取引態様の欄に「媒介」と表示された物件は「仲介物件」です。ご成約の際には仲介手数料を申し受けます。
情報更新日|2025年12月9日
次回更新予定|2026年1月1日