6,099万円
4LDK
種別 戸建て
建物面積 101.03㎡(壁芯)
おすすめ
ポイント
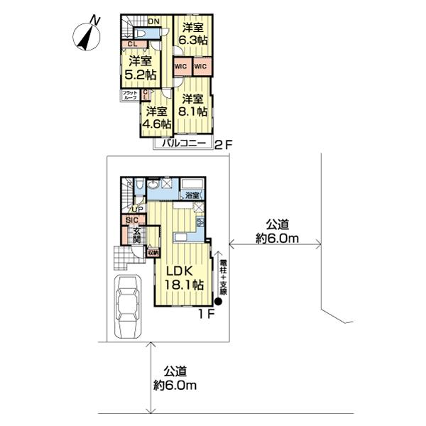
全3棟 人気の角地 前面南側6M公道につき陽当たり良好
風通しの良いワイドバルコニー WIC×2 SIC エアコン
床暖房 心地良いLDK18.1帖 食洗機付き対面キッチン
モニター付きインターホン 浴室乾燥機 建物完成済み 即入居可
| 築年月 | 2025年12月 |
|---|---|
| 構造 | 木造 |
| 階数 | 2階建て |
| 土地面積 | 100.00㎡ (30.25坪) |
| 駐車スペース | 駐車場あり( 1台) |
| 都市計画 | 市街化区域 |
| 用途地域 | 第一種中高層住居専用地域 |
| 建蔽率/容積率 | 70% / 200% |
| 地目 | 宅地 |
| 区画整理 | - |
| 接道 | |
| 私道 | なし |
| 権利 | 所有権 |
| 借地権 | - |
| 現況 | 空室(入居歴無) |
| 引渡時期 | 即時 |
| 引渡条件 | |
| 取引態様 | 媒介 |
| 管理コード | ST414690 |
設備・特記
《設備》:陽当り良好/上水道/南道路/床暖房/前道6m以上/下水道/カウンターキッチン/クローゼット/浴室暖房/システムキッチン/追い焚き風呂/3口コンロ/浴室乾燥機/LDK18畳以上/ワイドバルコニー/南面バルコニー/都市ガス/エアコン/南向き/全居室収納/トイレ2ヶ所/温水洗浄便座/食器洗浄乾燥機/床下収納/シューズインクローゼット/ウォークインクローゼット/TVモニター付きインターホン/角地
《物件の特徴》:-
備考
《その他制限》:準防火地域、景観法、道路斜線制限、隣地斜線制限、日影規制(2種)4h-2.5h/4m等
《その他》:備考:全3棟 人気の角地 前面南側6M公道につき陽当たり良好 風通しの良いワイドバルコニー WIC×2 SIC エアコン 床暖房 心地良いLDK18.1帖 食洗機付き対面キッチン モニター付きインターホン 浴室乾燥機 建物完成済み 即入居可 / 国土法届出:不要
《建築確認番号》:第25UDI1W建05526号
※詳細については、Webサイトにてご確認ください。現状と異なる場合は、現状を優先させていただきます。
※取引態様の欄に「媒介」と表示された物件は「仲介物件」です。ご成約の際には仲介手数料を申し受けます。
情報更新日|2026年3月3日
次回更新予定|2026年3月19日