33,800万円
表面利回り:約7.14%
-
種別 投資マンション
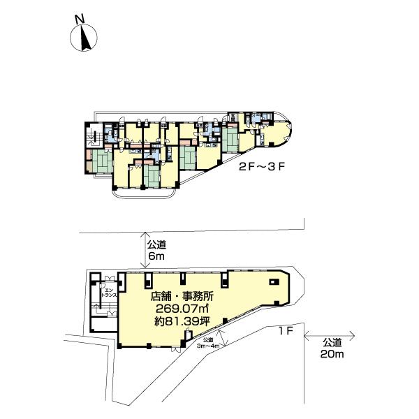
建物面積 866.44㎡(壁芯)
おすすめ
ポイント
想定表面利回り7.14%!店舗付きオーナーチェンジ物件です。
人気のJR千代田・常磐緩行線「金町」駅が生活圏!近隣施設充実!
全室内装リフォーム実施済みのマンションです!外壁タイル貼り!
人気の三方角地!月額想定賃料の他に別途アンテナ収入があります。
| 築年月 | 1992年3月 |
|---|---|
| 構造 | RC |
| 階数 | 3階建て |
| 総戸数 | 9戸 |
| 土地面積 | 469.61㎡ (142.05坪) |
| 駐車スペース | - |
| 都市計画 | 市街化区域 |
| 用途地域 | 第一種中高層住居専用地域/近隣商業地域 |
| 建蔽率/容積率 | 80%/60% / 300%/ 200% |
| 地目 | 宅地 |
| 区画整理 | - |
| 接道 | 東側20.0m公道に2.7m接道/北側6.0m公道に33.0m接道/南側3.0m公道に32.0m接道 |
| 私道 | なし |
| 権利 | 所有権 |
| 借地権 | - |
| 現況 | 賃貸中 |
| 引渡時期 | 相談 |
| 引渡条件 | オーナーチェンジ |
| 取引態様 | 媒介 |
| 管理コード | ST415759 |
設備・特記
《設備》:都市ガス/角部屋
《物件の特徴》:-
備考
《満室時想定賃料》:約2,415.66万円(年間)
《その他》:備考:想定表面利回り7.14%!店舗付きオーナーチェンジ物件です。人気のJR千代田・常磐緩行線「金町」駅が生活圏!近隣施設充実!全室内装リフォーム実施済みのマンションです!外壁タイル貼り!人気の三方角地!月額想定賃料の他に別途アンテナ収入があります。 / 国土法届出:不要
※詳細については、Webサイトにてご確認ください。現状と異なる場合は、現状を優先させていただきます。
※取引態様の欄に「媒介」と表示された物件は「仲介物件」です。ご成約の際には仲介手数料を申し受けます。
情報更新日|2026年4月14日
次回更新予定|2026年4月30日