24,000万円
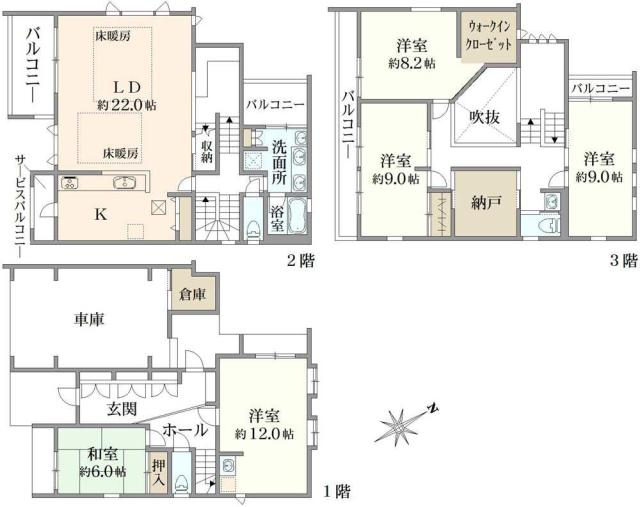
5SLDK
種別 戸建て
建物面積 225.06㎡(内法)
おすすめ
ポイント
| 築年月 | 2012年6月 |
|---|---|
| 構造 | 木造 |
| 階数 | 3階建て |
| 土地面積 | 183.26㎡ (55.43坪) |
| 駐車スペース | 駐車場有り |
| 都市計画 | 市街化区域 |
| 用途地域 | 準工業地域 |
| 建蔽率/容積率 | 70% / 200% |
| 地目 | 宅地 |
| 区画整理 | - |
| 接道 | 南西側6.3m公道に11.0m接道/北西側16.0mに接道 |
| 私道 | なし |
| 権利 | 所有権 |
| 借地権 | - |
| 現況 | 居住中 |
| 引渡時期 | 相談 |
| 引渡条件 | |
| 取引態様 | 媒介 |
| 管理コード | STNFC0C2001 |
設備・特記
《設備》:-
《物件の特徴》:設備:都市ガス、公営水道、本下水
備考
《その他》:備考:都市計画法他制限:準防火地域、第2種高度地区、計画道路あり(計画決定) / 地勢:平坦 / 国土法届出:不要
※詳細については、Webサイトにてご確認ください。現状と異なる場合は、現状を優先させていただきます。
※取引態様の欄に「媒介」と表示された物件は「仲介物件」です。ご成約の際には仲介手数料を申し受けます。
情報更新日|2026年2月10日
次回更新予定|2026年2月23日