4,390万円
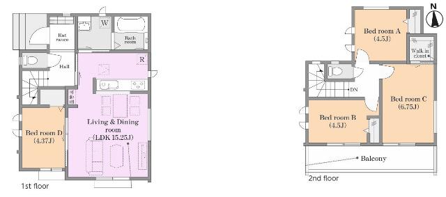
4LDK
種別 戸建て
建物面積 84.98㎡(内法)
おすすめ
ポイント
たっぷり収納できるウォークインクローゼット完備です。
お子様の様子を見ながらお料理ができる、対面キッチンです。
ワイドバルコニーで沢山の洗濯物が干せます。
駐車スペース2台分可能。来客用に重宝します。
| 築年月 | 2026年8月 |
|---|---|
| 構造 | 木造 |
| 階数 | 2階建て |
| 土地面積 | 141.90㎡ (42.92坪) |
| 駐車スペース | 駐車場あり( 2台) |
| 都市計画 | 市街化区域 |
| 用途地域 | 第一種低層住居専用地域 |
| 建蔽率/容積率 | 40% / 60% |
| 地目 | 宅地 |
| 区画整理 | - |
| 接道 | 南側に接道/西側に接道 |
| 私道 | なし |
| 権利 | 所有権 |
| 借地権 | - |
| 現況 | 未完成 |
| 引渡時期 | 2026年8月下旬予定 |
| 引渡条件 | |
| 取引態様 | 媒介 |
| 管理コード | SV401870 |
設備・特記
《設備》:2階建/都市ガス/上水道/南道路/南向き/フラット35S適合・利用可/LDK15畳以上/小学校徒歩10分以内/下水道/カウンターキッチン/クローゼット/全居室収納/トイレ2ヶ所/温水洗浄便座/システムキッチン/ウォークインクローゼット/全居室フローリング/駐車場2台分/TVモニター付きインターホン/角地
《物件の特徴》:たっぷり収納できるウォークインクローゼット完備です。
備考
《建築確認番号》:第HPA-26-03449-1号
※詳細については、Webサイトにてご確認ください。現状と異なる場合は、現状を優先させていただきます。
※取引態様の欄に「媒介」と表示された物件は「仲介物件」です。ご成約の際には仲介手数料を申し受けます。
情報更新日|2026年4月16日
次回更新予定|2026年4月30日