前へ
次へ
前へ
次へ
事務所
即入居可

テナント KYOKEN洛西口J・D(1F)

45 万円
共益費 15,000
45万円
45万円
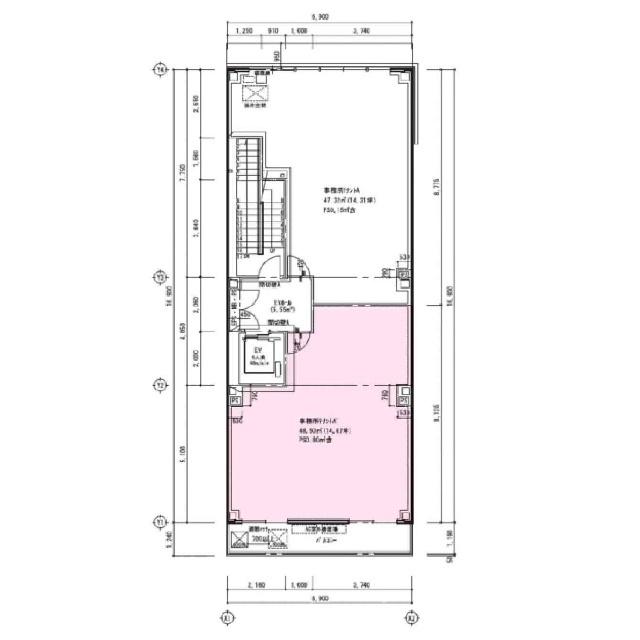
間取り
事務所
専有面積
72.30㎡
所在階
5階建ての1階
  • アイコン: 住所 京都府向日市寺戸町七ノ坪105
  • アイコン: 交通 阪急電鉄京都線 「洛西口駅」 徒歩3分 / JR東海道本線 「桂川駅」 徒歩11分 / 阪急電鉄京都線 「東向日駅」 徒歩16分
アイコン: お電話 075-955-8601
IP電話ご利用のお客様 : 075-955-8601
ピタットハウス
長岡京店
point!
新築テナントビル☆
オートロック・エレベーターあり アクセス良好! 2ヶ月間のフリーレント可!
お気軽にお問い合わせください!
簡単無料
お気軽にお問い合わせください!
物件情報・周辺環境・契約手続きについてなどお気軽にお問い合わせください。
電話でお問い合わせ
お電話 075-955-8601
担当店舗:ピタットハウス長岡京店

設備・条件

建物・立地
  • エレベータ
  • 都市ガス
通信
  • インターネット対応
セキュリティ
  • オートロック
特徴
  • 新築

物件概要

物件種別

部屋種別 事務所
建物名称 テナント KYOKEN洛西口J・D(1F)
所在地 京都府向日市寺戸町七ノ坪105 MAP
築年月 2026年3月 階数 5階建ての1階
建物構造 重量鉄骨造 総戸数 5戸
間取り 事務所 専有面積 72.30㎡
その他 -

費用

賃料 45万円 初期費用の確認をする 初期費用の確認をする 共益費 15,000円
礼金 45万円 敷金 45万円
保証金 - 償却金 -
その他一時金 ネームプレート費:11000円
その他月額費用 セコムセキュリティ:5280円/月
住宅保険 要加入
保証会社 必須/オリコ
保証会社補足 初回総賃料100%、総賃料1%/月
更新料 110,000円 更新事務手数料 -

契約条件

貸家契約区分 普通賃貸借 契約期間 2年
入居可能日 即可 空室状況を確認をする 空室状況を確認をする
フリーレント -
クレジットカード決済 -

駐車場

駐車場 なし 駐車場について質問する 駐車場について質問する
駐車場契約形態 -
駐車場備考 -
バイク置き場 -
駐輪場 -

備考

その他 ゴミ収集は週三回(月・木・金)缶ビン等含む。分別必須※歯科や内科などで出るゴミは別途契約必要
関連リンク
取引態様 媒介 管理コード 4617459
情報登録(更新)日 2026年4月16日 次回更新予定日 2026年4月21日
備考 めやす賃料:476,667円

めやす賃料とは賃料、共益費・管理費、敷引金、更新料を含み、賃料等条件の改定がないものと仮定して4年間賃借した場合(定期借家の場合は契約期間)の1ヶ月当たりの金額です。

※敷引金は、敷金の償却、保証金の償却など、預かった金額から必ず引くものをいいます。
※めやす賃料は、消費者に適切な情報を提供するための表示であり事業者に一時金を推奨するものではありません。
※めやす賃料は、実際の総支払額と異なる場合があります。詳しくは不動産会社にご確認ください。  

周辺環境

  • 向日市立第4向陽小学校:788m
    向日市立第4向陽小学校:788m
  • 向日市立寺戸中学校:549m
    向日市立寺戸中学校:549m
コンビニ
ローソンHB阪急洛西口店
306m
買物
フレスコ洛西口駅店
375m
ショッピング施設
洛西タカシマヤ
3261m
ドラッグストア
ダックスイオンモール京都桂川店
747m
ホームセンター
ジョーシン桂川イオンモール店
856m
病院
医療法人真生会向日回生病院介護医
1464m
役所
向日市役所
2153m
郵便局
向日物集女郵便局
1161m
図書館
向日市立図書館
2014m
交番
西京警察署
3044m
公園
北ノ口緑地
1513m
銀行
京都銀行桂川支店
341m
幼稚園
向日市立第5保育所
770m
小学校
向日市立第4向陽小学校
788m
中学校
向日市立寺戸中学校
549m
高校
京都府立桂高校
1448m

取扱店舗

ピタットハウス長岡京店
ピタットハウス長岡京店
有限会社ハローホーム長岡
交通
JR東海道本線長岡京駅より徒歩1分
営業時間
10:00 〜 19:00
定休日
毎週水曜日(1〜3月は不定休)
  • 駐車場あり/近隣駐車場あり/キッズスペースあり
お電話 075-955-8601
メール お問い合わせ
  • お問い合わせ区分

  • 内見希望日時

    第一希望

    第二希望

  • お名前

    全角
  • ご希望の連絡方法

    メールアドレス

    電話番号

    半角
    半角
  • その他ご希望等

ピタットハウスの個人情報の取り扱いについて

生活情報

向日市の暮らしデータ

向日市は、京都府の西南部に位置し、南北約4km、東西約2km、面積は7.72km2と西日本一面積の小さな市です。西部一帯には向日丘陵が南北に細長く横たわり、丘陵の竹林からは多くのタケノコが産出されます。東部は平たんで田や畑が多く、中央部は住宅街が形成されています。また、道路・鉄道の交通網が集中しており、京阪神地域に至便の地です。784年から10年間栄えた宮都「長岡京」の政治・文化の中心地でした。

基本データ

市区役所所在地 向日市寺戸町中野20
公式ホームページURL https://www.city.muko.kyoto.jp/
総人口 56,859人
人口増減率(2015年/2020年) 106.5%
向日市の生活情報を詳しくみる