◆「渋谷」駅徒歩圏内 賃貸マンション!

お気軽にお問い合わせください!
物件情報・周辺環境・契約手続きについてなどお気軽にお問い合わせください。
設備・条件
|
|
---|---|
|
|
|
|
|
|
|
|
|
|
|
|
物件概要
物件種別
部屋種別 | マンション | ||
---|---|---|---|
建物名称 | ルフォンプログレ渋谷ヒルトップ(1508) | ||
所在地 | 東京都目黒区青葉台4丁目 | ||
築年月 | 2022年10月 | 階数 | 地下1階・地上18階建ての15階 |
建物構造 | 鉄筋コンクリート造 | 総戸数 | 135戸 |
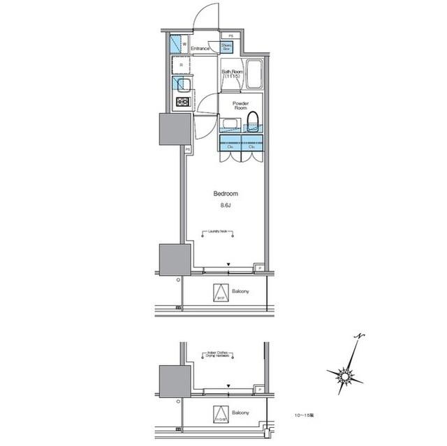
間取り | 1K(洋7.6帖) | 専有面積 | 25.55㎡ |
向き | 北 | バルコニー面積 | - |
その他 | - |
費用
賃料 |
17.9万円
初期費用の確認をする
|
共益費 | 10,000円 |
---|---|---|---|
礼金 | 17.9万円 | 敷金 | 17.9万円 |
保証金 | - | 償却金 | - |
その他一時金 | 清掃費:38500円 / エアコン清掃費:11000円 | ||
その他月額費用 | - | ||
住宅保険 | 要加入(2年16550円) | ||
保証会社 | 必須 | ||
保証会社補足 | レジデンシャルパートナーズ 保証料:賃料等の50%(最低2万)、月額保証・事務手数料:賃料等の1%(更新料無) | ||
更新料 | 更新後賃料:1ヶ月 | 更新事務手数料 | - |
契約条件
貸家契約区分 | 普通賃貸借 | 契約期間 | 2年 |
---|---|---|---|
入居可能日 |
相談
空室状況を確認をする
|
引渡時期相談内容 | - |
フリーレント | - | ||
クレジットカード決済 | - |
駐車場
駐車場 |
なし
駐車場について質問する
|
||
---|---|---|---|
駐車場契約形態 | - | ||
駐車場備考 | - | ||
バイク置き場 | - | ||
駐輪場 | - |
備考
その他 | ■法人契約等保証会社利用不可の場合:敷金1ヶ月積み増し、ペット飼育の場合:敷金賃料2ヶ月分、ペット飼育時使用細則遵守・小型犬又は猫1匹迄、解約時室内及びエアコンクリーニング費用借主負担、楽器演奏不可、付随設備に関する費用・空き状況等は要確認■駐車場利用は14階〜18階の2LDK・3LDKお申込みの方限定となります。 | ||
---|---|---|---|
関連リンク | |||
取引態様 | 媒介 | 管理コード | 4053756 |
情報登録(更新)日 | 2025年10月3日 | 次回更新予定日 | 2025年10月9日 |
取扱店舗

ピタットハウス恵比寿店
株式会社エスエイアシスト
- 交通
- 東京メトロ日比谷線「恵比寿」駅 徒歩7分、東京メトロ日比谷線「広尾」駅 徒歩10分
- 営業時間
- 10:00 〜 18:00
- 定休日
- 毎週水曜日
ピタットハウスでは信頼されるサイトを目指して、物件情報の精度向上に努めています。
掲載物件に誤りがある場合は
こちら からご連絡ください。現状と異なる場合は、現状を優先させていただきます。
取引態様の欄に「媒介」と表示された物件は「仲介物件」です。ご成約の際には仲介手数料を申し受けます。
生活情報
目黒区の暮らしデータ
目黒区は、東京23区の南西部にあり、区内は台地の中を二つの川の谷が走り、起伏の多い地形です。1932年に目黒町と碑衾町が合併し誕生した、山の手の緑ある良好な住宅地です。世論調査でも、「住み続けたい」という人が90%を超える、良好な住環境が特徴です。
基本データ
市区役所所在地 | 目黒区上目黒2-19-15 |
---|---|
公式ホームページURL | https://www.city.meguro.tokyo.jp/ |
総人口 | 288,088人 |
人口増減率(2015年/2020年) | 103.8% |
地域のおすすめ情報ブログ
一覧を見る
-
〜小さなスイーツで大きな笑顔を〜今日は、都立大学駅で人気のスイーツ店「とよんちのたまご都立大学駅前店」のご紹介です!駅から歩いて2分!卵好きにはたまらないスイー...続きを読む
-
〜食の楽しさを求めて〜こんにちは!ピタットハウス都立大学店の佐藤です。本日ご紹介するのは、都立大学駅徒歩2分にお店を構える、『freefromstyl...続きを読む
-
味良しコスパ良しの焼肉屋さん『大統領』〜お久しぶりです!都立大学店の佐藤です。本日は弊社の男性スタッフに大人気のお店『大統領』さんをご紹介します♪都立大学駅から徒歩5分...続きを読む
-
ママの元気を貰いに行こう!愛される名店こんにちは!新人の須田です!記念すべき私の初投稿でご紹介させていただくのは、地元に愛される隠れた名店『ママズキッチン』さんです!...続きを読む