78.1万円
店舗
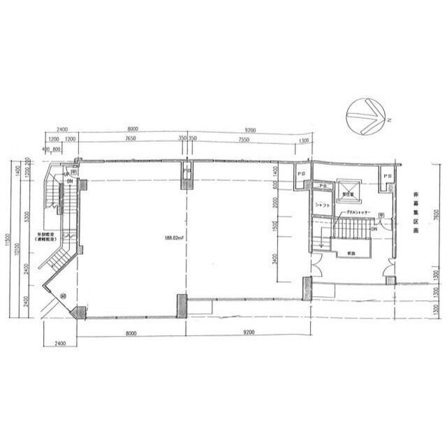
種別 店舗
専有面積 188.02㎡
おすすめ
ポイント
■駅前の交差点・大通り沿い・バス停からの視認性良好!
軽飲食・業種相談! ※重飲食、夜間営業はご遠慮ください。 ※エレベーター無し。階段になります。
| 築年月 | 2003年2月 |
|---|---|
| 構造 | 鉄筋コンクリート造 |
| 所在階 | 5階建ての2階 |
| 向き | 東 |
| バルコニー面積 | - |
| 駐車場 | なし |
| 入居可能日 | 即可 |
| 賃貸借の種類 | 普通賃貸借 |
| 契約期間 | 3年 |
| 共益費・管理費 | - |
| 敷金 | 355万円 |
| 礼金 | 781,000円 |
| 保証金 | - |
| 償却金 | 79.0万円 |
| 更新料 | 更新後賃料:1ヶ月 |
| 保証料等 | 要加入 |
| 保証会社補足 | 初回保証料:賃料等の月総支払額の100%/年間保証料委託料:1年毎に10% |
| 取引態様 | 貸主 |
| 情報更新日 | 2025年12月8日 |
| 次回更新予定日 | 2025年12月24日 |
設備・特記
《設備》都市ガス/インターネット対応/CATV
《物件の特徴》コンビニ近く
《その他一時金》-
《その他月額費用》-
備考
※現状と異なる場合は、現状を優先させていただきます。取引態様の欄に「媒介」と表示された物件は「仲介物件」です。ご成約の際には仲介手数料を申し受けます。