前へ
次へ
前へ
次へ
マンション
即入居可

パークアクシス亀戸中央公園(1305)

16.4 万円
共益費 10,000
16.4万円
-
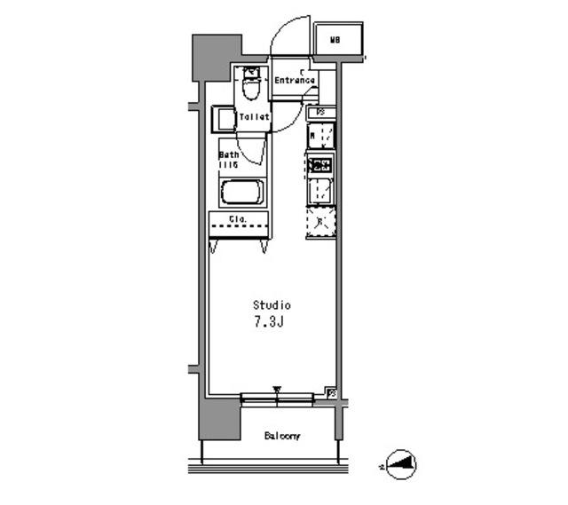
間取り
1DK
専有面積
34.05㎡
所在階
14階建ての13階
向き
南西
  • アイコン: 住所 東京都江東区亀戸7丁目
  • アイコン: 交通 JR総武・中央緩行線 「亀戸駅」 徒歩10分
簡単無料
アイコン: お電話 0037-6001-01684
IP電話ご利用のお客様 : 03-5836-3633
ピタットハウス
東大島店
point!
オートロックマンション!ペット・楽器相談可能!
■バス・トイレ別!洗面所独立!室内洗濯機置き場! ■宅配ボックス・敷地内ゴミ置き場あり! ■徒歩3分圏内にリコス亀戸7丁目店・ローソン亀戸七丁目店あります。
お気軽にお問い合わせください!
簡単無料
お気軽にお問い合わせください!
物件情報・周辺環境・契約手続きについてなどお気軽にお問い合わせください。

設備・条件

建物・立地
  • エレベータ
  • 宅配ボックス
  • 敷地内ごみ置き場
  • バイク置場
通信
  • インターネット対応
  • CATV
  • BSアンテナ
  • CSアンテナ
セキュリティ
  • オートロック
部屋設備
  • フローリング
  • バルコニー
  • 室内洗濯機置場
冷暖房
  • エアコン
バス・トイレ
  • バス・トイレ別
  • 浴室乾燥機
  • 独立洗面台
特徴
  • ペット相談可
  • ピアノ相談可
  • 事務所利用不可
  • フリーレント1ヶ月

物件概要

物件種別

部屋種別 マンション
建物名称 パークアクシス亀戸中央公園(1305)
所在地 東京都江東区亀戸7丁目 MAP
築年月 2007年11月 階数 14階建ての13階
建物構造 鉄筋コンクリート造 総戸数 -
間取り 1DK 専有面積 34.05㎡
向き 南西 バルコニー面積 5.00㎡
その他 管理形態:日勤管理 

費用

賃料 16.4万円 初期費用の確認をする 初期費用の確認をする 共益費 10,000円
礼金 - 敷金 16.4万円
保証金 - 償却金 -
その他一時金 室内清掃費:59400円 / 鍵交換費:22000円
その他月額費用 口座振替事務手数料:220円/月
住宅保険 要加入
保証会社 必須
保証会社補足 初回保証委託料(最低20,000円):月額賃料等の50%、 2年目以降:9,600円/年
更新料 更新後賃料:1ヶ月 更新事務手数料 -

契約条件

貸家契約区分 普通賃貸借 契約期間 2年
入居可能日 相談 空室状況を確認をする 空室状況を確認をする 引渡時期相談内容 -
フリーレント あり 1ヶ月
クレジットカード決済 -

駐車場

駐車場 なし 駐車場について質問する 駐車場について質問する
駐車場契約形態 -
駐車場備考 -
バイク置き場 -
駐輪場 -

備考

その他
関連リンク
取引態様 媒介 管理コード 3881105
情報登録(更新)日 2026年2月14日 次回更新予定日 2026年2月21日
備考 めやす賃料:

めやす賃料とは賃料、共益費・管理費、敷引金、更新料を含み、賃料等条件の改定がないものと仮定して4年間賃借した場合(定期借家の場合は契約期間)の1ヶ月当たりの金額です。

※敷引金は、敷金の償却、保証金の償却など、預かった金額から必ず引くものをいいます。
※めやす賃料は、消費者に適切な情報を提供するための表示であり事業者に一時金を推奨するものではありません。
※めやす賃料は、実際の総支払額と異なる場合があります。詳しくは不動産会社にご確認ください。  

周辺環境

  • 江東区立浅間竪川小学校:637m
    江東区立浅間竪川小学校:637m
  • 江東区立亀戸中学校:882m
    江東区立亀戸中学校:882m
  • 私立中央学院大学中央高校:695m
    私立中央学院大学中央高校:695m
  • 江東区役所:4469m
    江東区役所:4469m
  • 江東亀戸七郵便局:259m
    江東亀戸七郵便局:259m
  • 江東区立亀戸図書館:371m
    江東区立亀戸図書館:371m
  • 亀戸九丁目緑道公園:1004m
    亀戸九丁目緑道公園:1004m
  • 医療法人社団順江会江東病院:1144m
    医療法人社団順江会江東病院:1144m
  • 丸井錦糸町店:2296m
    丸井錦糸町店:2296m
  • アインズ&トルペカメイドクロック店:883m
    アインズ&トルペカメイドクロック店:883m
  • コジマ×ビックカメラKAMEIDO CLOCK店:883m
    コジマ×ビックカメラKAMEIDO CLOCK店:883m
  • 東京情報デザイン専門職大学:1844m
    東京情報デザイン専門職大学:1844m
  • KAMEIDO CLOCK:883m
    KAMEIDO CLOCK:883m
コンビニ
ローソン亀戸七丁目店
226m
買物
リコス亀戸7丁目店
199m
ショッピング施設
丸井錦糸町店
2296m
ドラッグストア
アインズ&トルペカメイドクロック
883m
ホームセンター
コジマ×ビックカメラKAMEID
883m
病院
医療法人社団順江会江東病院
1144m
役所
江東区役所
4469m
郵便局
江東亀戸七郵便局
259m
図書館
江東区立亀戸図書館
371m
交番
向島警察署
2141m
公園
亀戸九丁目緑道公園
1004m
銀行
小松川信用金庫亀戸支店
640m
幼稚園
江東区立亀戸第二保育園
320m
小学校
江東区立浅間竪川小学校
637m
中学校
江東区立亀戸中学校
882m
高校
私立中央学院大学中央高校
695m

取扱店舗

ピタットハウス東大島店
ピタットハウス東大島店
株式会社ドリームジャパン
交通
都営新宿線「東大島」駅 大島口を出て徒歩1分
営業時間
10:00 〜 18:00
定休日
毎週水曜日・1/6は営業17時30分まで
お電話 0037-6001-01684 無料
メール お問い合わせ
  • お問い合わせ区分

  • 内見希望日時

    第一希望

    第二希望

  • お名前

    全角
  • ご希望の連絡方法

    メールアドレス

    電話番号

    半角
    半角
  • その他ご希望等

ピタットハウスの個人情報の取り扱いについて

ピタットハウスでは信頼されるサイトを目指して、物件情報の精度向上に努めています。
掲載物件に誤りがある場合は こちら からご連絡ください。現状と異なる場合は、現状を優先させていただきます。
取引態様の欄に「媒介」と表示された物件は「仲介物件」です。ご成約の際には仲介手数料を申し受けます。

生活情報

江東区の暮らしデータ

江東区は、1947年に深川・城東の2区が合併し生まれました。現在の江東区は、水辺と緑に恵まれた自然的特性をいかしながら、「みんなでつくる伝統、未来 水彩都市・江東」を目指して、発展しています。中でも、臨海部の発展は著しく、2024年4月には人口54万人を突破しました。2021年開催の東京オリンピック・パラリンピック競技大会では、江東区に多くの競技場が配置され、また、2025年3月には海の森公園が開設する等、更なる大きな発展の可能性を秘めています。

基本データ

市区役所所在地 江東区東陽4-11-28
公式ホームページURL https://www.city.koto.lg.jp/
総人口 524,310人
人口増減率(2015年/2020年) 105.3%
江東区の生活情報を詳しくみる

地域のおすすめ情報ブログ

一覧を見る