前へ
次へ
前へ
次へ
マンション

Brillia有明 Sky Tower(1012)

39.4 万円
共益費 -
39.4万円
78.8万円
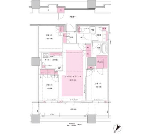
間取り
3LDK
専有面積
74.77㎡
所在階
33階建ての10階
向き
北西
  • アイコン: 住所 東京都江東区有明1丁目
  • アイコン: 交通 ゆりかもめ 「有明テニスの森駅」 徒歩6分 / ゆりかもめ 「お台場海浜公園駅」 徒歩15分 / 東京臨海高速鉄道りんかい線 「国際展示場駅」 徒歩9分
簡単無料
アイコン: お電話 0037-6001-02650
IP電話ご利用のお客様 : 03-5628-9922
ピタットハウス
亀戸店
お気軽にお問い合わせください!
簡単無料
お気軽にお問い合わせください!
物件情報・周辺環境・契約手続きについてなどお気軽にお問い合わせください。

設備・条件

建物・立地
  • 分譲マンションタイプ
  • エレベータ
  • 宅配ボックス
  • フロントサービス
  • 敷地内ごみ置き場
  • タワー型マンション
通信
  • インターネット対応
  • BSアンテナ
  • CSアンテナ
セキュリティ
  • オートロック
部屋設備
  • フローリング
  • バルコニー
  • 室内洗濯機置場
  • ウォークインクロゼット
冷暖房
  • エアコン
  • 床暖房
キッチン
  • システムキッチン
  • IHコンロ
  • グリル
バス・トイレ
  • バス・トイレ別
  • 浴室乾燥機
  • 追い焚き風呂
  • 独立洗面台
特徴
  • ペット相談可
  • 事務所利用不可

物件概要

物件種別

部屋種別 マンション
建物名称 Brillia有明 Sky Tower(1012)
所在地 東京都江東区有明1丁目 MAP
築年月 2011年3月 階数 33階建ての10階
建物構造 鉄筋コンクリート造 総戸数 -
間取り 3LDK 専有面積 74.77㎡
向き 北西 バルコニー面積 15.00㎡
その他 管理形態:常務管理 

費用

賃料 39.4万円 初期費用の確認をする 初期費用の確認をする 共益費 -
礼金 78.8万円 敷金 39.4万円
保証金 - 償却金 -
その他一時金 室内清掃費:139819円 / 鍵交換費:33000円
その他月額費用 口座振替事務手数料:110円/月
住宅保険 要加入
保証会社 必須
保証会社補足 初回保証委託料(最低20,000円):月額賃料等の50%、 2年目以降:9,600円/年
更新料 - 更新事務手数料 -

契約条件

貸家契約区分 定期賃貸借 契約期間 2年
入居可能日 2026年3月20日予定 空室状況を確認をする 空室状況を確認をする 引渡時期相談内容 -
フリーレント -
クレジットカード決済 -

駐車場

駐車場 なし 駐車場について質問する 駐車場について質問する
駐車場契約形態 -
駐車場備考 -
バイク置き場 -
駐輪場 -

備考

その他
関連リンク
取引態様 媒介 管理コード 3699097
情報登録(更新)日 2026年1月15日 次回更新予定日 2026年1月22日
備考 めやす賃料:

めやす賃料とは賃料、共益費・管理費、敷引金、更新料を含み、賃料等条件の改定がないものと仮定して4年間賃借した場合(定期借家の場合は契約期間)の1ヶ月当たりの金額です。

※敷引金は、敷金の償却、保証金の償却など、預かった金額から必ず引くものをいいます。
※めやす賃料は、消費者に適切な情報を提供するための表示であり事業者に一時金を推奨するものではありません。
※めやす賃料は、実際の総支払額と異なる場合があります。詳しくは不動産会社にご確認ください。  

Brillia有明 Sky Tower の他の空室物件

1
建物の空室物件一覧 次へ

取扱店舗

ピタットハウス亀戸店
ピタットハウス亀戸店
スターツピタットハウス株式会社
交通
JR総武線 亀戸駅
営業時間
10:00 〜 18:00
定休日
毎週水曜日、木曜日・GW休業・夏季休業・年末年始休業・GW休業:5/3(日)〜5/7(木)
お電話 0037-6001-02650 無料
メール お問い合わせ
  • お問い合わせ区分

  • 内見希望日時

    第一希望

    第二希望

  • お名前

    全角
  • ご希望の連絡方法

    メールアドレス

    電話番号

    半角
    半角
  • その他ご希望等

ピタットハウスの個人情報の取り扱いについて

ピタットハウスでは信頼されるサイトを目指して、物件情報の精度向上に努めています。
掲載物件に誤りがある場合は こちら からご連絡ください。現状と異なる場合は、現状を優先させていただきます。
取引態様の欄に「媒介」と表示された物件は「仲介物件」です。ご成約の際には仲介手数料を申し受けます。

生活情報

江東区の暮らしデータ

江東区は、1947年に深川・城東の2区が合併し生まれました。現在の江東区は、水辺と緑に恵まれた自然的特性をいかしながら、「みんなでつくる伝統、未来 水彩都市・江東」を目指して、発展しています。中でも、臨海部の発展は著しく、2024年4月には人口54万人を突破しました。2021年開催の東京オリンピック・パラリンピック競技大会では、江東区に多くの競技場が配置され、また、2025年3月には海の森公園が開設する等、更なる大きな発展の可能性を秘めています。

基本データ

市区役所所在地 江東区東陽4-11-28
公式ホームページURL https://www.city.koto.lg.jp/
総人口 524,310人
人口増減率(2015年/2020年) 105.3%
江東区の生活情報を詳しくみる

地域のおすすめ情報ブログ

一覧を見る