6,580万円
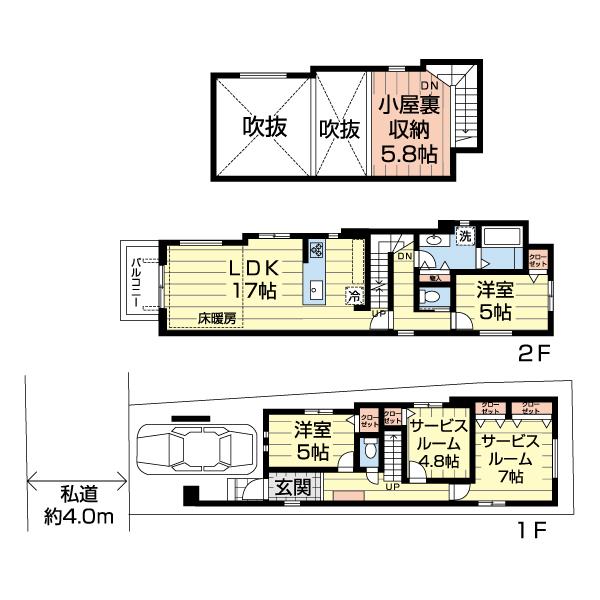
2SLDK
種別 戸建て
建物面積 103.71㎡(壁芯)
おすすめ
ポイント
全5棟 15帖以上の広々LDK リビング式床暖房で足元も快適。
自然とコミュニケーションが増えるリビングイン階段・対面キッチン
食洗機・浄水器・浴室乾燥機・モニター付インターホン・全室収納。
首都高・馬場ICが近く、都心へのダイレクトアクセスが可能。
| 築年月 | 2026年8月 |
|---|---|
| 構造 | 木造 |
| 階数 | 2階建て |
| 土地面積 | 82.10㎡ (24.83坪) |
| 駐車スペース | 駐車場あり( 1台) |
| 都市計画 | 市街化区域 |
| 用途地域 | 第二種中高層住居専用地域 |
| 建蔽率/容積率 | 60% / 150% |
| 地目 | 宅地 |
| 区画整理 | - |
| 接道 | |
| 私道 | なし |
| 権利 | 所有権 |
| 借地権 | - |
| 現況 | 未完成 |
| 引渡時期 | 2026年8月下旬予定 |
| 引渡条件 | |
| 取引態様 | 媒介 |
| 管理コード | ST415576 |
設備・特記
《設備》:都市ガス/上水道/床暖房/LDK15畳以上/小学校徒歩10分以内/複層ガラス/下水道/カウンターキッチン/クローゼット/浄水器/全居室収納/地盤調査書有/トイレ2ヶ所/温水洗浄便座/浴室暖房/洗髪洗面化粧台/食器洗浄乾燥機/システムキッチン/追い焚き風呂/浴室乾燥機/バルコニー/照明器具/24時間換気システム/TVモニター付きインターホン
《物件の特徴》:-
備考
《その他制限》:準防火地域、第三種高度地区
《その他》:備考:全5棟 15帖以上の広々LDK リビング式床暖房で足元も快適。自然とコミュニケーションが増えるリビングイン階段・対面キッチン。食洗機・浄水器・浴室乾燥機・モニター付インターホン・全室収納。首都高・馬場ICが近く、都心へのダイレクトアクセスが可能。 / 国土法届出:不要
《建築確認番号》:第BNV確済25-832号
※詳細については、Webサイトにてご確認ください。現状と異なる場合は、現状を優先させていただきます。
※取引態様の欄に「媒介」と表示された物件は「仲介物件」です。ご成約の際には仲介手数料を申し受けます。
情報更新日|2026年4月3日
次回更新予定|2026年4月19日