6,780万円
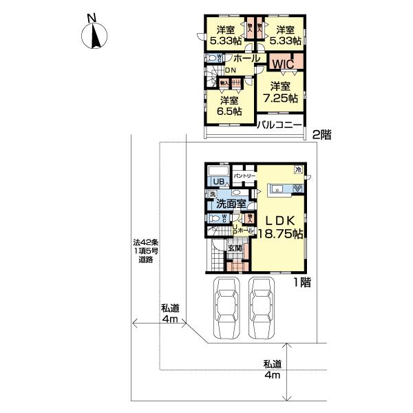
4LDK
種別 戸建て
建物面積 109.75㎡(壁芯)
おすすめ
ポイント
広いリビングは家族のくつろぎのスペース。LDK18.75帖!
ウォークインクローゼットやクローゼット、物入など収納豊富!
子育て環境が整う街。保育園・小学校・中学校の教育施設が揃う。
宅配ボックス、パントリー、食洗器、浴室乾燥機など設備充実!
| 築年月 | 2026年2月 |
|---|---|
| 構造 | 木造 |
| 階数 | 2階建て |
| 土地面積 | 129.88㎡ (39.28坪) |
| 駐車スペース | 駐車場あり( 2台) |
| 都市計画 | 市街化区域 |
| 用途地域 | 第一種低層住居専用地域 |
| 建蔽率/容積率 | 50% / 100% |
| 地目 | 宅地 |
| 区画整理 | - |
| 接道 | |
| 私道 | 私道負担面積:70.21㎡(持分:1/2) |
| 権利 | 所有権 |
| 借地権 | - |
| 現況 | 未完成 |
| 引渡時期 | 2026年3月上旬予定 |
| 引渡条件 | |
| 取引態様 | 媒介 |
| 管理コード | ST411702 |
設備・特記
《設備》:陽当り良好/上水道/小学校徒歩10分以内/下水道/カウンターキッチン/クローゼット/システムキッチン/追い焚き風呂/浴室乾燥機/照明器具/LDK18畳以上/駐車場2台分/ワイドバルコニー/南面バルコニー/都市ガス/南向き/閑静な住宅街/パントリー/浄水器/全居室収納/トイレ2ヶ所/温水洗浄便座/洗髪洗面化粧台/食器洗浄乾燥機/床下収納/ウォークインクローゼット/全居室フローリング/TVモニター付きインターホン/角地
《物件の特徴》:-
備考
《その他》:備考:広いリビングは家族のくつろぎのスペース。LDK18.75帖!ウォークインクローゼットやクローゼット、物入など収納豊富!子育て環境が整う街。保育園・小学校・中学校の教育施設が揃う。宅配ボックス、パントリー、食洗器、浴室乾燥機など設備充実! / 国土法届出:不要
《建築確認番号》:第25UDI1W建05306号
※詳細については、Webサイトにてご確認ください。現状と異なる場合は、現状を優先させていただきます。
※取引態様の欄に「媒介」と表示された物件は「仲介物件」です。ご成約の際には仲介手数料を申し受けます。
情報更新日|2025年11月13日
次回更新予定|2025年12月1日