3,990万円
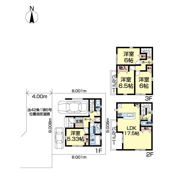
4LDK
種別 戸建て
建物面積 116.64㎡(壁芯)
おすすめ
ポイント
永住対応の4LDK、ゆとりを生み出すこだわりの設計・最新設備。
最長35年住宅保証システム 地盤保証20年 安心無料定期点検付
家族の寛ぎのプライベート時間を過ごす、ゆとりのLDK17.5帖
長期優良住宅と住宅性能評価書の取得で安心の住まいを提供。
| 築年月 | 2025年12月 |
|---|---|
| 構造 | 木造 |
| 階数 | 3階建て |
| 土地面積 | 72.05㎡ (21.79坪) |
| 駐車スペース | 駐車場あり( 1台) |
| 都市計画 | 市街化調整区域 |
| 用途地域 | |
| 建蔽率/容積率 | 60% / 200% |
| 地目 | 宅地 |
| 区画整理 | - |
| 接道 | |
| 私道 | なし |
| 権利 | 所有権 |
| 借地権 | - |
| 現況 | 未完成 |
| 引渡時期 | 2025年12月下旬予定 |
| 引渡条件 | |
| 取引態様 | 媒介 |
| 管理コード | ST410766 |
設備・特記
《設備》:陽当り良好/上水道/小学校徒歩10分以内/複層ガラス/カウンターキッチン/クローゼット/浴室暖房/システムキッチン/追い焚き風呂/3口コンロ/浴室乾燥機/照明器具/24時間換気システム/駐車場2台分/バルコニー2面以上/ワイドバルコニー/都市ガス/整形地/浄化槽/LDK15畳以上/閑静な住宅街/浄水器/全居室収納/温水洗浄便座/食器洗浄乾燥機/全居室フローリング
《物件の特徴》:-
備考
《その他》:販売戸数:1戸 / 備考:永住対応の4LDK、ゆとりを生み出すこだわりの設計・最新設備。最長35年住宅保証システム 地盤保証20年 安心無料定期点検付。家族の寛ぎのプライベート時間を過ごす、ゆとりのLDK17.5帖。長期優良住宅と住宅性能評価書の取得で安心の住まいを提供。 / 国土法届出:不要
《建築確認番号》:第25UDI1建03830号
※詳細については、Webサイトにてご確認ください。現状と異なる場合は、現状を優先させていただきます。
※取引態様の欄に「媒介」と表示された物件は「仲介物件」です。ご成約の際には仲介手数料を申し受けます。
情報更新日|2025年11月10日
次回更新予定|2025年12月2日