国道11号沿いで便利な立地です。
営業所・事務所におすすめです。地上2階部分

お気軽にお問い合わせください!
物件情報・周辺環境・契約手続きについてなどお気軽にお問い合わせください。
設備・条件
|
|
---|
物件概要
物件種別
部屋種別 | 事務所 | ||
---|---|---|---|
建物名称 | 高井ビル(2) | ||
所在地 | 愛媛県四国中央市三島金子2丁目 MAP | ||
築年月 | 1975年4月 | 階数 | 5階建ての2階 |
建物構造 | 鉄筋コンクリート造 | 総戸数 | - |
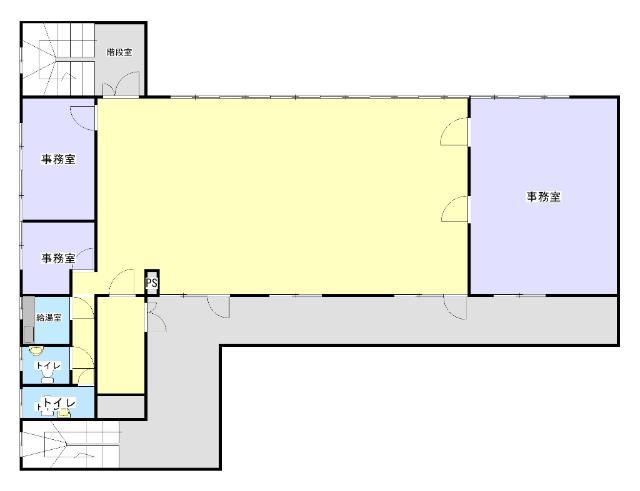
間取り | 事務所 | 専有面積 | 215.14㎡ |
その他 | - |
費用
賃料 |
16.5万円
初期費用の確認をする
|
共益費 | - |
---|---|---|---|
礼金 | - | 敷金 | 30万円 |
保証金 | - | 償却金 | - |
その他一時金 | - | ||
その他月額費用 | - | ||
住宅保険 | 要加入(2年22500円) | ||
保証会社 | 必須 | ||
保証会社補足 | 要加入 | ||
更新料 | - | 更新事務手数料 | - |
契約条件
貸家契約区分 | 普通賃貸借 | 契約期間 | 2年 |
---|---|---|---|
入居可能日 |
即可
空室状況を確認をする
|
||
フリーレント | - | ||
クレジットカード決済 | - |
駐車場
駐車場 |
有り(無料)
駐車場について質問する
|
||
---|---|---|---|
駐車場契約形態 | - | ||
駐車場備考 | - | ||
バイク置き場 | - | ||
駐輪場 | - |
備考
その他 | 定額上下水道代8000円 | ||
---|---|---|---|
関連リンク | |||
取引態様 | 媒介 | 管理コード | 2871998 |
情報登録(更新)日 | 2025年9月25日 | 次回更新予定日 | 2025年10月10日 |
高井ビル の他の空室物件
1
件
周辺環境
-
愛媛県立三島高校:1449m
-
四国中央市立三島西中学校:2239m
-
四国中央市立三島小学校:1045m
-
みしま乳児保育園:602m
-
医療法人康仁会西岡病院:306m
-
伊予三島郵便局:799m
-
四国中央市役所:1761m
-
四国中央警察署:1043m
-
四国中央市三島図書館:1762m
-
フジ三島店:596m
-
mac中之庄店:662m
-
ホームセンターコーナン四国中央店:1226m
- コンビニ
-
ローソン四国中央三島病院前店481m
- 買物
-
フジ三島店596m
- ショッピング施設
-
いよてつ高島屋四国中央店2581m
- ドラッグストア
-
mac中之庄店662m
- ホームセンター
-
ホームセンターコーナン四国中央店1226m
- 病院
-
医療法人康仁会西岡病院306m
- 役所
-
四国中央市役所1761m
- 郵便局
-
伊予三島郵便局799m
- 図書館
-
四国中央市三島図書館1762m
- 交番
-
四国中央警察署1043m
- 公園
-
中央広場公園1078m
- 銀行
-
JAうま本店651m
- 幼稚園
-
みしま乳児保育園602m
- 小学校
-
四国中央市立三島小学校1045m
- 中学校
-
四国中央市立三島西中学校2239m
- 高校
-
愛媛県立三島高校1449m
取扱店舗

ピタットハウス三島中央店
ジャストホーム株式会社
- 交通
- JR予讃線「伊予三島」駅徒歩4分となります。駐車場も多数ございますので、ご来店の際はご利用下さい。
- 営業時間
- 09:00 〜 18:00
- 定休日
- 毎週水曜日・祝祭日・年末年始:12/27〜1/3
ピタットハウスでは信頼されるサイトを目指して、物件情報の精度向上に努めています。
掲載物件に誤りがある場合は
こちら からご連絡ください。現状と異なる場合は、現状を優先させていただきます。
取引態様の欄に「媒介」と表示された物件は「仲介物件」です。ご成約の際には仲介手数料を申し受けます。
生活情報
四国中央市の暮らしデータ
四国中央市は、2004年4月1日に、川之江市、伊予三島市、宇摩郡土居町、宇摩郡新宮村の2市1町1村が合併し誕生しました。愛媛県の東端部に位置し、四国四県が接する地域です。四国縦貫、横断道の結接点として、四国各県の県庁所在地まで約1時間と、まさに四国の中央、交通の要衝の地となっています。東部には全国屈指の製紙・紙加工業地帯を擁し、西部には自然海岸と広大な農地、南部には四国山地へと続く豊かな自然が広がっています。
基本データ
市区役所所在地 | 四国中央市三島宮川4-6-55 |
---|---|
公式ホームページURL | https://www.city.shikokuchuo.ehime.jp/ |
総人口 | 82,754人 |
人口増減率(2015年/2020年) | 94.7% |