35,000万円
表面利回り:約3.81%
-
種別 投資マンション
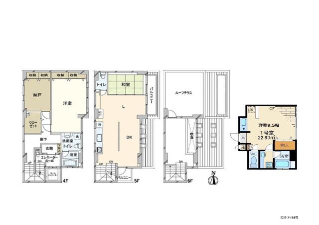
建物面積 347.70㎡(壁芯)
おすすめ
ポイント
【一棟収益RCマンション】木場駅徒歩1分好立地/満室稼働中
現行年間収入約1,335万円/表面利回り3.81%
2009年築/総戸数6戸/1階テナント
周辺大型商業施設あり
| 築年月 | 2009年6月 |
|---|---|
| 構造 | RC |
| 階数 | 6階建て |
| 総戸数 | 6戸 |
| 土地面積 | 103.68㎡ (31.36坪) |
| 駐車スペース | - |
| 都市計画 | 市街化区域 |
| 用途地域 | 商業地域 |
| 建蔽率/容積率 | 80% / 600% |
| 地目 | 宅地 |
| 区画整理 | - |
| 接道 | 東側6.0m公道に16.3m接道 |
| 私道 | なし |
| 権利 | 所有権 |
| 借地権 | - |
| 現況 | 賃貸中 |
| 引渡時期 | 相談 |
| 引渡条件 | オーナーチェンジ |
| 取引態様 | 媒介 |
| 管理コード | ST404375 |
設備・特記
《設備》:-
《物件の特徴》:【一棟収益RCマンション】木場駅徒歩1分好立地/満室稼働現行収入1335万円/表面利回り3.81%
備考
《満室時想定賃料》:約1,335万円(年間)
《その他制限》:景観計画地区
《その他》:管理会社(株式会社フジホーム) / 備考:201・301号室はオーナー自主管理(PM支払なし)、その他は株フジホームへ賃貸建物管理委託中。契約不適合責任免責。 / 地勢:平坦 / 国土法届出:不要
本物件は、オークション(入札)物件です。表示価格は「最低売却価格」です。
最低売却価格を下回る金額での入札も可能ですが、交渉の結果、契約に至らない可能性があります。
物件を見学の上、専用用紙にて入札をお願いします。
最も高い金額で入札されたお客様が落札(交渉)権を獲得します。詳しくは担当店舗までお問い合わせ下さい。
入札受付締切日時: 2026年6月14日10時00分
入札会場:グランドプリンス新高輪「天平」
オークションの流れについては、ホームページ(https://www.myhome-auction.com/)でご確認ください。
※詳細については、Webサイトにてご確認ください。現状と異なる場合は、現状を優先させていただきます。
※取引態様の欄に「媒介」と表示された物件は「仲介物件」です。ご成約の際には仲介手数料を申し受けます。
情報更新日|2026年5月24日
次回更新予定|2026年6月7日